蕨市中央7丁目
京浜東北・根岸線 蕨駅 徒歩15分
4LDK
建物面積:121.3㎡
土地面積:66.46㎡
2026年06月築(予定)
5,180万円



| 物件種別 | 新築戸建 |
| 所在地 | GoogleMaps |
| 交通 | 京浜東北・根岸線 蕨駅 徒歩8分 |
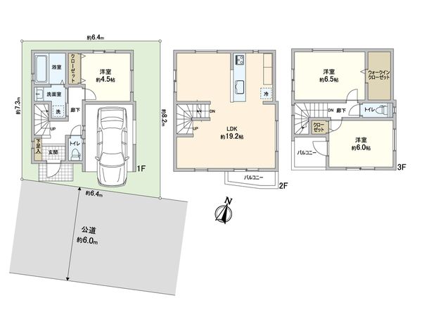
| 間取り | 3LDK |
| 建物面積 | 98.6㎡(約29.82坪) |
| 土地面積 | 50.08㎡(約15.14坪) |
| 築年月 | 2026年07月築(予定) |
-物件のおすすめポイント- ▼立地 ・JR京浜東北・根岸線 蕨駅 徒歩8分 ▼建物の特徴 ・前面道路約6mにつき開放感あり ・車1台駐車可能(車種制限有) ▼お部屋の特徴 ・約19.2帖のゆったりしたLDK ・コミュニケーションを育むリビング階段 ・東南向きから日差しが入るLDK ▼設備 ・家族との会話が弾む対面式キッチン ・窓付の明るい浴室 ・ウォークインクローゼット等収納充実 ■ ご希望の住まい探しをお手伝いします ━━━━━・・・ 物件の詳細・ご相談はお気軽にお問い合わせください。
| 所在地 | GoogleMaps |
| 価格 | 5,180万円 |
| 交通 | 京浜東北・根岸線 蕨駅 徒歩8分 |
| その他費用 | - |
| 間取り | 3LDK |
| 建物面積 | 98.6㎡(約29.82坪) |
| 土地面積 | 50.08㎡(約15.14坪) |
| 築年月 | 2026年07月築(予定) |
| 建物構造 | 木造3階建 |
| 現況 | 未完成 |
| 駐車場 | 有 |
| 土地権利 | 所有権 |
| 地目 | 宅地 |
| 接道状況 | 南側: 約 6m (公道) |
| 建ぺい率 | 60% |
| 容積率 | 200% |
| 用途地域 | 第一種住居地域 |
| 都市計画 | 市街化区域 |
| 建築確認番号 | 第KBIーYKH25ー10ー3564号 |
| 備考 | 上記建物面積のうち1F車庫面積11.94㎡含む |
| 引渡時期 | 2026年07月下旬以降 |
| 取引態様 | 仲介 |
| 更新日 | 2026年05月23日 |
| 次回更新予定 | 2026年06月06日 |
| 物件番号 | FLEBGA4B |
最新のAI技術を活用した相談サービスです。
お客様一人ひとりのニーズに合わせて最適な情報をご提供します。
リハウスAIチャットの詳しい説明はこちら
GoogleMaps
| スーパー | マルエツ蕨店 約370m(徒歩5分) |
| 公園 | 蕨城址公園 約140m(徒歩2分) |
| 小学校 | 北小学校 約570m(徒歩8分) |
| 中学校 | 第二中学校 約1230m(徒歩16分) |
0120-959-531
0120-959-531
物件の売却をご検討の方は、 はやめの査定依頼がおすすめです!
買い替えをご検討の方はこちら0120-959-531

