川口市大字石神
武蔵野線 東川口駅 バス17分 石神中 停歩7分
3LDK
建物面積:104.95㎡
土地面積:114.12㎡
2026年05月築(予定)
3,798万円



| 物件種別 | 新築戸建 |
| 所在地 | GoogleMaps |
| 交通 | |
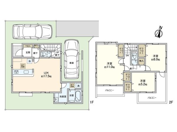
| 間取り | 3LDK |
| 建物面積 | 112.16㎡(約33.92坪) |
| 土地面積 | 129.78㎡(約39.25坪) |
| 築年月 | 2026年05月築(予定) |
-物件のおすすめポイント- ▼建物の特徴 ・木造2階建・3LDK新築住宅 ・車を雨や日差しから守る車庫付 ※車種による制限あり ▼お部屋の特徴 ・1階に水まわりを集中させ、生活に配慮した間取り ・明るく開放感のあるリビングダイニング ・バルコニーに面した洋室は採光に優れた心地よい空間 ▼設備 ・料理をしながら会話が楽しめる対面式キッチン ・家事の負担を軽減できる食器洗浄機付 ・雨の日でも洗濯物が乾く浴室換気乾燥機能 ■ ご希望の住まい探しをお手伝いします ━━━━━・・・ 物件の詳細・ご相談はお気軽にお問い合わせください。
| 所在地 | GoogleMaps |
| 価格 | 3,798万円 |
| 交通 | |
| その他費用 | - |
| 間取り | 3LDK |
| 建物面積 | 112.16㎡(約33.92坪) |
| 土地面積 | 129.78㎡(約39.25坪) |
| 築年月 | 2026年05月築(予定) |
| 建物構造 | 木造2階建 |
| 現況 | 未完成 |
| 駐車場 | 有 |
| 土地権利 | 所有権 |
| 地目 | 宅地(現況地目:畑) |
| 接道状況 | - |
| 建ぺい率 | 50% |
| 容積率 | 100% |
| 用途地域 | 第一種低層住居専用地域 |
| 都市計画 | 市街化区域 |
| 建築確認番号 | 第25UDI1W建11540号 |
| 備考 | ※私道持分:分譲地内6.0m開発道路42条1項2号道路約122.21平米×1/7 ※清掃施設:約3.68平米×1/9 ※協定道路:21.77平米 ※カウンター0.36平米含む 上記建物面積のうち1F車庫面積13.66㎡含む |
| 引渡時期 | 2026年06月下旬以降 |
| 取引態様 | 仲介 |
| 更新日 | 2026年05月09日 |
| 次回更新予定 | 2026年05月23日 |
| 物件番号 | FLEBGA0F |
最新のAI技術を活用した相談サービスです。
お客様一人ひとりのニーズに合わせて最適な情報をご提供します。
リハウスAIチャットの詳しい説明はこちら
GoogleMaps
| スーパー | ベルク川口差間店 約1900m(徒歩24分) |
| 小学校 | 木曽呂小学校 約1100m(徒歩14分) |
| 中学校 | 北中学校 約2200m(徒歩28分) |
0120-959-531
0120-959-531
物件の売却をご検討の方は、 はやめの査定依頼がおすすめです!
買い替えをご検討の方はこちら0120-959-531

