川口市上青木西1丁目
京浜東北・根岸線 西川口駅 徒歩19分
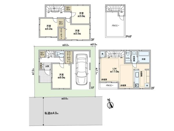
4LDK
建物面積:108.94㎡
土地面積:101.57㎡
2026年06月築(予定)
4,980万円



| 物件種別 | 新築戸建 |
| 所在地 | GoogleMaps |
| 交通 | 京浜東北・根岸線 蕨駅 徒歩7分 |
| 間取り | 4LDK |
| 建物面積 | 103.27㎡(約31.23坪) |
| 土地面積 | 61.61㎡(約18.63坪) |
| 築年月 | 2026年02月築(予定) |
返済計画を入力すると毎月のお支払い目安を表示できます
-物件のおすすめポイント- ▼立地 ・JR京浜東北・根岸線 蕨駅 徒歩7分の立地 ▼建物の特徴 ・駐車スペース1台分有(車種による) ・前面道路南向きにつき陽当り良好 ▼お部屋の特徴 ・LDK一部には足元から暖まる床暖房有 ▼設備 ・EV車充電設備有 ・玄関電子キー ・食器洗浄乾燥機 ・浴室換気乾燥暖房機 ・温水洗浄便座 ▼周辺環境 ・周辺買い物施設充実(ライフインフォメーション参照) ■ ご希望の住まい探しをお手伝いします ━━━━━・・・ 物件の詳細・ご相談はお気軽にお問い合わせください。
| 所在地 | GoogleMaps |
| 価格 | 4,980万円 |
| 交通 | 京浜東北・根岸線 蕨駅 徒歩7分 |
| その他費用 | - |
| 間取り | 4LDK |
| 建物面積 | 103.27㎡(約31.23坪) |
| 土地面積 | 61.61㎡(約18.63坪) |
| 築年月 | 2026年02月築(予定) |
| 建物構造 | 木造3階建 |
| 現況 | 未完成 |
| 駐車場 | 有 |
| 土地権利 | 所有権 |
| 地目 | 宅地 |
| 接道状況 | 南側: 約 4m (私道) |
| 建ぺい率 | 60% |
| 容積率 | 200%(但し、前面道路幅員により160%に制限されます) |
| 用途地域 | 第二種住居地域 |
| 都市計画 | 市街化区域 |
| 建築確認番号 | 第SJK-KX255904210号 |
| 備考 | ※ルーフバルコニー面積2.97平米 ※設備延長保証・修理サービス費用(税込88,000円)を引渡時にご負担頂きます 上記建物面積のうち1F車庫面積14.04㎡含む |
| 引渡時期 | 2026年03月下旬以降 |
| 取引態様 | 仲介 |
| 更新日 | 2026年02月01日 |
| 次回更新予定 | 2026年02月15日 |
| 物件番号 | FLEBGA2B |
最新のAI技術を活用した相談サービスです。
お客様一人ひとりのニーズに合わせて最適な情報をご提供します。
リハウスAIチャットの詳しい説明はこちら
GoogleMaps
| スーパー | コモディイイダ蕨店 約430m(徒歩6分) |
| スーパー | マミーマート芝園店 約570m(徒歩8分) |
| 小学校 | 芝樋ノ爪小学校 約370m(徒歩5分) |
| 中学校 | 芝西中学校 約950m(徒歩12分) |
| その他利便施設1 | ウエルシア川口芝樋ノ爪店 約540m(徒歩7分) |
| その他利便施設2 | イオンモール川口前川 約1760m(徒歩22分) |
0120-959-531
0120-959-531
物件の売却をご検討の方は、 はやめの査定依頼がおすすめです!
買い替えをご検討の方はこちら0120-959-531

