川口市芝中田2丁目
京浜東北・根岸線 蕨駅 徒歩14分
2SLDK
建物面積:98.5㎡
土地面積:70.57㎡
新築
4,398万円



| 物件種別 | 新築戸建 |
| 所在地 | GoogleMaps |
| 交通 | 京浜東北・根岸線 蕨駅 徒歩14分 |
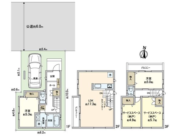
| 間取り | 2SLDK ※S・サービススペースは納戸です |
| 建物面積 | 106.65㎡(約32.26坪) |
| 土地面積 | 58.36㎡(約17.65坪) |
| 築年月 | 2025年12月築 |
返済計画を入力すると毎月のお支払い目安を表示できます
-物件のおすすめポイント- ▼立地 ・JR京浜東北線「蕨」駅 徒歩14分 ▼建物の特徴 ・木造3階建・2SSLDK ・車を風や日差しから守るビルトインガレージ付 ・前面道路約6mにつき開放感ございます ▼お部屋の特徴 ・開放的な空間を演出することができる2階リビング ・バルコニーに面した明るい洋室 ・コミュニケーションを育むリビング階段 ▼設備 ・家事の負担を軽減できる食器洗浄機付システムキッチン ・トイレには快適な温水洗浄便座付 ・シャンプーや掃除に便利なシャワー付洗面化粧台 ・収納豊富につき居住空間を有効に活用できます ・複層ガラス ■ ご希望の住まい探しをお手伝いします ━━━━━・・・ 物件の詳細・ご相談はお気軽にお問い合わせください。
| 所在地 | GoogleMaps |
| 価格 | 4,398万円 |
| 交通 | 京浜東北・根岸線 蕨駅 徒歩14分 |
| その他費用 | - |
| 間取り | 2SLDK ※S・サービススペースは納戸です |
| 建物面積 | 106.65㎡(約32.26坪) |
| 土地面積 | 58.36㎡(約17.65坪) |
| 築年月 | 2025年12月築 |
| 建物構造 | 木造3階建 |
| 現況 | 空家 |
| 駐車場 | 有 |
| 土地権利 | 所有権 |
| 地目 | 宅地 |
| 接道状況 | - |
| 建ぺい率 | 60% |
| 容積率 | 200% |
| 用途地域 | 第二種中高層住居専用地域 |
| 都市計画 | 市街化区域 |
| 備考 | ※建築基準22条指定 ※2SSLDK 上記建物面積のうち1F車庫面積9.32㎡含む |
| 引渡時期 | 即時 |
| 取引態様 | 仲介 |
| 更新日 | 2026年02月15日 |
| 次回更新予定 | 2026年03月01日 |
| 物件番号 | FLEBGA30 |
最新のAI技術を活用した相談サービスです。
お客様一人ひとりのニーズに合わせて最適な情報をご提供します。
リハウスAIチャットの詳しい説明はこちら
GoogleMaps
| スーパー | マミーマート川口芝店 約520m(徒歩7分) |
| 小学校 | 芝南小学校 約930m(徒歩12分) |
| 中学校 | 芝中学校 約2500m(徒歩32分) |
0120-959-531
0120-959-531
物件の売却をご検討の方は、 はやめの査定依頼がおすすめです!
買い替えをご検討の方はこちら0120-959-531

