ふじみ野市大井中央1丁目
東武東上線 ふじみ野駅 徒歩23分
3LDK
建物面積:103.92㎡
土地面積:142.99㎡
新築
4,180万円



| 物件種別 | 新築戸建 |
| 所在地 | GoogleMaps |
| 交通 | |
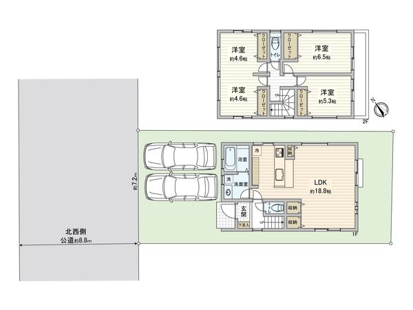
| 間取り | 3LDK |
| 建物面積 | 92.74㎡(約28.05坪) |
| 土地面積 | 120.03㎡(約36.3坪) |
| 築年月 | 2025年08月築 |
返済計画を入力すると毎月のお支払い目安を表示できます
■ アクセス ━━━━━━━━━━━━━━━・・・・・ ○ 東武東上線「上福岡」駅 徒歩25分 ■ おすすめポイント ━━━━━━━━━━━━━━━・・・・・ ○ 令和7年8月完成の新築戸建 ○ 敷地面積約120平米(約36坪) ○ 建物面積約92平米(約28坪)の3LDK ○ LDKは広々約18.8帖 ○ 全居室収納付きです ○ 駐車スペース2台分あり(車種による) ○ 買い物施設・公園まで徒歩圏内 ○ 学区内の小学校へも通学しやすい立地です ■ 設備 ━━━━━━━━━━━━━━━・・・・・ ○ 浄水器付きシステムキッチン ○ 食器洗浄乾燥機 ○ 浴室換気暖房乾燥機 ■ 周辺施設 ━━━━━━━━━━━━━━━・・・・・ ○ 鶴ヶ丘小学校 徒歩8分(約600m) ○ 大井東中学校 徒歩20分(約1600m) ○ ベルク大井緑ヶ丘店 徒歩4分(約260m) ○ ローソンふじみ野大井中央4丁目店 徒歩4分(約300m) ○ さくらクリニック 徒歩13分(約1000m) ○ 亀久保西公園 徒歩6分(約450m)
室内を内覧しているように物件を見学することができます。
| 所在地 | GoogleMaps |
| 価格 | 4,180万円 |
| 交通 | |
| その他費用 | - |
| 間取り | 3LDK |
| 建物面積 | 92.74㎡(約28.05坪) |
| 土地面積 | 120.03㎡(約36.3坪) |
| 築年月 | 2025年08月築 |
| 建物構造 | 木造2階建 |
| 現況 | 空家 |
| 駐車場 | 有 |
| 土地権利 | 所有権 |
| 地目 | 宅地 |
| 接道状況 | 北西側: 約 8.8m (公道) |
| 建ぺい率 | 60% |
| 容積率 | 200% |
| 用途地域 | 第一種住居地域 |
| 都市計画 | 市街化区域 |
| 備考 | - |
| 引渡時期 | 即時 |
| 取引態様 | 仲介 |
| 更新日 | 2026年01月19日 |
| 次回更新予定 | 2026年02月02日 |
| 物件番号 | FLSAGB3B |
最新のAI技術を活用した相談サービスです。
お客様一人ひとりのニーズに合わせて最適な情報をご提供します。
リハウスAIチャットの詳しい説明はこちら
GoogleMaps
| スーパー | ベルク大井緑ケ丘店 約260m(徒歩4分) |
| 公園 | 亀久保西公園 約450m(徒歩6分) |
| 病院 | さくらクリニック 約1000m(徒歩13分) |
| 小学校 | 鶴ヶ丘小学校 約600m(徒歩8分) |
| 中学校 | 大井東中学校 約1600m(徒歩20分) |
| その他利便施設1 | ウエルシア大井町中央店 約700m(徒歩9分) |
| その他利便施設2 | 大井緑ヶ丘郵便局 約550m(徒歩7分) |
| その他利便施設3 | ビバモール埼玉大井 約170m(徒歩3分) |
三井不動産リアルティ株式会社
国土交通大臣(15)第777号
0120-993-431
0120-993-431
物件の売却をご検討の方は、 はやめの査定依頼がおすすめです!
買い替えをご検討の方はこちら0120-993-431

