ふじみ野市大原2丁目
東武東上線 上福岡駅 徒歩13分
2SLDK
建物面積:90.66㎡
土地面積:93.96㎡
2026年03月築(予定)
4,798万円



| 物件種別 | 新築戸建 |
| 所在地 | GoogleMaps |
| 交通 | |
| 間取り | 4LDK |
| 建物面積 | 104.27㎡(約31.54坪) |
| 土地面積 | 165.93㎡(約50.19坪) |
| 築年月 | 2026年03月築(予定) |
返済計画を入力すると毎月のお支払い目安を表示できます
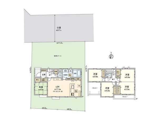
■ アクセス ━━━━━━━━━━━━━━━・・・・・ ○ 東武東上線「ふじみ野」駅徒歩27分 ○ 東武東上線「上福岡」駅徒歩28分 ■ おすすめポイント ━━━━━━━━━━━━━━━・・・・・ ○ 閑静な住宅街に立地 ○ 令和8年3月築の新築戸建 ○ 敷地面積広々165.93平米(約50坪)の整形地 ○ 建物面積104.27平米(約31坪) ○ 収納豊富な4LDKの間取り ○ LDKは広々約17.1帖 ○ リビングは開放感を演出する折上天井 ○ 収納力がうれしいキッチン収納 ○ 用途様々な土間収納 ○ 雨の日に便利でプライバシーが守れる室内物干し ○ 駐車スペース2台分あり(車種による) ○ 都市ガス・公営水道・本下水 ○ 前面約5.7m公道に接道 ○ 間口広々約11.2m ○ 買い物施設・公園まで徒歩圏内 ○ 学区内の小学校へ通学しやすい立地 ■ 設備 ━━━━━━━━━━━━━━━・・・・・ ○ フルオープンキッチン ○ 食洗機 ○ 浴室乾燥機付きユニットバス ○ 24時間換気 ○ 温水洗浄便座 ○ 床下収納 ○ 全居室収納あり ○ TVモニター付きインターホン ■ 周辺施設 ━━━━━━━━━━━━━━━・・・・・ ○ さぎの森小学校 徒歩10分(約750m) ○ 花の木中学校 徒歩6分(約450m) ○ 水天宮公園 徒歩3分(約220m) ○ ローソンふじみ野中福岡店 徒歩4分(約300m) ○ セブンイレブンふじみ野福岡店 徒歩6分(約450m) ○ ドラッグエース中福岡店 徒歩7分(約500m) ○ 上福岡総合病院 徒歩9分(約700m) ○ ビッグ・エー上福岡松山店 徒歩12分(約900m)
| 所在地 | GoogleMaps |
| 価格 | 4,798万円 |
| 交通 | |
| その他費用 | - |
| 間取り | 4LDK |
| 建物面積 | 104.27㎡(約31.54坪) |
| 土地面積 | 165.93㎡(約50.19坪) |
| 築年月 | 2026年03月築(予定) |
| 建物構造 | 木造2階建 |
| 現況 | 未完成 |
| 駐車場 | 有 |
| 土地権利 | 所有権 |
| 地目 | 宅地 |
| 接道状況 | 北側: 約 5.7m (公道) |
| 建ぺい率 | 60% |
| 容積率 | 100% |
| 用途地域 | 第一種低層住居専用地域 |
| 都市計画 | 市街化区域 |
| 建築確認番号 | 第25UDI1W建09484号 |
| 備考 | - |
| 引渡時期 | 相談 |
| 取引態様 | 仲介 |
| 更新日 | 2026年02月26日 |
| 次回更新予定 | 2026年03月12日 |
| 物件番号 | FLSBGA38 |
最新のAI技術を活用した相談サービスです。
お客様一人ひとりのニーズに合わせて最適な情報をご提供します。
リハウスAIチャットの詳しい説明はこちら
GoogleMaps
| 公園 | 水天宮公園 約220m(徒歩3分) |
| 病院 | 上福岡総合病院 約700m(徒歩9分) |
| 小学校 | ふじみ野市立さぎの森小学校 約750m(徒歩10分) |
| 中学校 | ふじみ野市立花の木中学校 約450m(徒歩6分) |
| その他利便施設1 | ローソンふじみ野中福岡店 約300m(徒歩4分) |
| その他利便施設2 | セブンイレブンふじみ野福岡店 約450m(徒歩6分) |
| その他利便施設3 | ドラッグ・エース中福岡店 約500m(徒歩7分) |
| その他利便施設4 | ビッグ・エー上福岡松山店 約900m(徒歩12分) |
| その他利便施設5 | ふじみ野市役所 約1800m(徒歩23分) |
三井不動産リアルティ株式会社
国土交通大臣(15)第777号
0120-993-431
0120-993-431
物件の売却をご検討の方は、 はやめの査定依頼がおすすめです!
買い替えをご検討の方はこちら0120-993-431

