ふじみ野市上福岡5丁目
東武東上線 上福岡駅 徒歩9分
3LDK
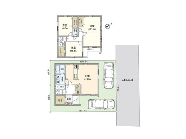
建物面積:97.7㎡
土地面積:101.97㎡
新築
4,730万円



| 物件種別 | 新築戸建 |
| 所在地 | GoogleMaps |
| 交通 | |
| 間取り | 3LDK |
| 建物面積 | 98.53㎡(約29.8坪) |
| 土地面積 | 101㎡(約30.55坪) |
| 築年月 | 2026年05月築(予定) |
■ アクセス ━━━━━━━━━━━━━━━・・・・・ ○ 東武東上線「上福岡」駅 徒歩9分 ■ おすすめポイント ━━━━━━━━━━━━━━━・・・・・ ○ 「上福岡」駅徒歩圏内 ○ 静かな住宅街に立地 ○ 令和8年5月築の新築戸建 ○ 敷地面積約101平米(約30坪)の整形地 ○ 建物面積約98平米(約29坪)の3LDK ○ LDK約16.5帖 ○ 主寝室は広々約11帖 ○ 駐車スペース2台分あり(車種による) ○ 都市ガス・本下水 ○ 買い物施設・公園まで徒歩圏内 ■ 設備 ━━━━━━━━━━━━━━━・・・・・ ○ 対面式システムキッチン ○ 浴室乾燥機付きユニットバス ○ シャワー付き洗面化粧台 ○ 温水洗浄便座 ○ ウォークインクローゼット ○ シューズクローク ○ パントリー ○ 全居室収納あり ○ 複層ガラス ■ 周辺施設 ━━━━━━━━━━━━━━━・・・・・ ○ 西小学校 徒歩8分(約600m) ○ 福岡中学校 徒歩22分(約1700m) ○ セブンイレブン上福岡富士見通り店 徒歩4分(約250m) ○ 生鮮市場TOP鶴ケ舞店 徒歩5分(約350m) ○ ドラッグセイムス上福岡西店 徒歩5分(約400m) ○ すじの内科循環器クリニック 徒歩5分(約400m) ○ DAISO上福岡4丁目店 徒歩6分(約450m) ○ 上福岡駅前郵便局 徒歩7分(約500m) ○ ココネ上福岡 徒歩9分(約650m) ○ 杉並クローバー公園 徒歩9分(約650m)
| 所在地 | GoogleMaps |
| 価格 | 4,730万円 |
| 交通 | |
| その他費用 | - |
| 間取り | 3LDK |
| 建物面積 | 98.53㎡(約29.8坪) |
| 土地面積 | 101㎡(約30.55坪) |
| 築年月 | 2026年05月築(予定) |
| 建物構造 | 木造2階建 |
| 現況 | 未完成 |
| 駐車場 | 有 |
| 土地権利 | 所有権 |
| 地目 | 宅地 |
| 接道状況 | 北東側: 約 4m (私道) |
| 建ぺい率 | 60% |
| 容積率 | 200%(但し、前面道路幅員により容積率の制限を受けます) |
| 用途地域 | 第二種中高層住居専用地域 |
| 都市計画 | 市街化区域 |
| 建築確認番号 | 第HPA-26-00681-1号 |
| 備考 | ※隅切部分1.62平米のうち持分3分の1あり |
| 引渡時期 | 相談 |
| 取引態様 | 仲介 |
| 更新日 | 2026年05月11日 |
| 次回更新予定 | 2026年05月25日 |
| 物件番号 | FLSBGA71 |
最新のAI技術を活用した相談サービスです。
お客様一人ひとりのニーズに合わせて最適な情報をご提供します。
リハウスAIチャットの詳しい説明はこちら
GoogleMaps
| スーパー | マミーマート生鮮市場TOP鶴ケ舞店 約350m(徒歩5分) |
| スーパー | ヤオコー上福岡西口店 約650m(徒歩9分) |
| 病院 | すじの内科循環器クリニック 約400m(徒歩5分) |
| 小学校 | ふじみ野市立西小学校 約600m(徒歩8分) |
| 中学校 | ふじみ野市立福岡中学校 約1700m(徒歩22分) |
| その他利便施設1 | セブンイレブン上福岡富士見通り店 約250m(徒歩4分) |
| その他利便施設2 | ドラッグセイムス上福岡西店 約400m(徒歩5分) |
| その他利便施設3 | ダイソー上福岡4丁目店 約450m(徒歩6分) |
| その他利便施設4 | 上福岡駅前郵便局 約500m(徒歩7分) |
| その他利便施設5 | ココネ上福岡 約650m(徒歩9分) |
三井不動産リアルティ株式会社
国土交通大臣(15)第777号
0120-993-431
0120-993-431
物件の売却をご検討の方は、 はやめの査定依頼がおすすめです!
買い替えをご検討の方はこちら0120-993-431

