小平市小川東町5丁目
武蔵野線 新小平駅 徒歩7分
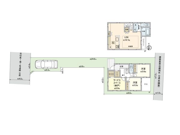
3LDK
建物面積:85.28㎡
土地面積:107㎡
2026年09月築(予定)
5,590万円



| 物件種別 | 新築戸建 |
| 所在地 | GoogleMaps |
| 交通 | |
| 間取り | 2SLDK ※S・サービススペースは納戸です |
| 建物面積 | 82.59㎡(約24.98坪) |
| 土地面積 | 107.09㎡(約32.39坪) |
| 築年月 | 2026年09月築(予定) |
-物件のおすすめポイント- ▼立地 ・ JR武蔵野線「新小平」駅徒歩7分 ・ 西武拝島線・西武国分寺線「小川」駅徒歩11分 ▼建物の特徴 ・ 駐車場1台分あり(車種による) ▼お部屋の特徴 ・ LDKは約18帖とゆったりくつろげる空間 ▼設備 ・ アウトドア用品等の収納にも便利なシューズインクローク付 ・ 来客時に便利なTVモニター付インターホン ・ 家事の負担を軽減できる食器洗浄機付システムキッチン ・ 雨の日の洗濯にも便利な浴室換気乾燥機付 ・ リビングは寒い日でも暖かく過ごせる床暖房付 ▼周辺環境 ・ マミーマート小平小川店まで徒歩5分(約330m) ・ セブンイレブン小平小川東町5丁目店まで徒歩4分(約295m) ・ ウエルシア小平小川東店まで徒歩5分(約370m) ・ 小平市立小平第六小学校まで徒歩5分(約400m) ・ 小平市立小平第二中学校まで徒歩8分(約610m) ■ ご希望の住まい探しをお手伝いします ━━━━━・・・ 物件の詳細・ご相談はお気軽にお問い合わせください。
| 所在地 | GoogleMaps |
| 価格 | 5,590万円 |
| 交通 | |
| その他費用 | - |
| 間取り | 2SLDK ※S・サービススペースは納戸です |
| 建物面積 | 82.59㎡(約24.98坪) |
| 土地面積 | 107.09㎡(約32.39坪) |
| 築年月 | 2026年09月築(予定) |
| 建物構造 | 木造2階建 |
| 現況 | 未完成 |
| 駐車場 | - |
| 土地権利 | 所有権 |
| 地目 | 宅地 |
| 接道状況 | - |
| 建ぺい率 | 40% |
| 容積率 | 80% |
| 用途地域 | 第一種低層住居専用地域 |
| 都市計画 | 市街化区域 |
| 建築確認番号 | 第25UDI1T建04745号 |
| 備考 | - |
| 引渡時期 | 相談 |
| 取引態様 | 仲介 |
| 更新日 | 2026年04月26日 |
| 次回更新予定 | 2026年05月10日 |
| 物件番号 | FM9BGA65 |
最新のAI技術を活用した相談サービスです。
お客様一人ひとりのニーズに合わせて最適な情報をご提供します。
リハウスAIチャットの詳しい説明はこちら
GoogleMaps
| スーパー | マミーマート小平小川店 約330m(徒歩5分) |
| 公園 | 新小平西公園 約190m(徒歩3分) |
| 小学校 | 小平市立小平第六小学校 約400m(徒歩5分) |
| 中学校 | 小平市立小平第二中学校 約610m(徒歩8分) |
| その他利便施設1 | 新小平駅(JR東日本 武蔵野線) 約550m(徒歩7分) |
| その他利便施設2 | 小川駅(西武国分寺線・西武拝島線) 約870m(徒歩11分) |
| その他利便施設3 | セブンイレブン小平小川東町5丁目店 約295m(徒歩4分) |
| その他利便施設4 | ウエルシア小平小川東店 約370m(徒歩5分) |
| その他利便施設5 | 小平郵便局 約490m(徒歩7分) |
0120-00-4131
0120-00-4131
物件の売却をご検討の方は、 はやめの査定依頼がおすすめです!
買い替えをご検討の方はこちら0120-00-4131

