川口市戸塚東2丁目
埼玉高速鉄道 東川口駅 徒歩14分
3SLDK
建物面積:85.7㎡
土地面積:108.44㎡
新築
4,490万円



| 物件種別 | 新築戸建 |
| 所在地 | GoogleMaps |
| 交通 | |
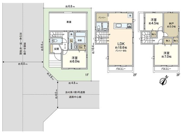
| 間取り | 3SLDK ※S・サービススペースは納戸です |
| 建物面積 | 112.19㎡(約33.93坪) |
| 土地面積 | 69.95㎡(約21.15坪) |
| 築年月 | 2026年02月築 |
-物件のおすすめポイント- ▼立地 ・2路線利用可能の好立地 武蔵野線・埼玉高速鉄道「東川口」駅より徒歩13分 ・南西・南東向き角地のため陽当たり・通風良好 ▼建物の特徴 ・令和8年2月完成済の新築戸建 ・3階建・3SLDK ・駐車スペース有(車種によります) ▼お部屋の特徴 ・広々としたLDK約18.6帖 ・開放感のあるリビングイン階段 ・全居室収納有 ・南東向きバルコニー ▼設備 ・対面式キッチン ・床下収納 ・納戸 ・パントリー ▼周辺環境 ・スーパーまで徒歩5分圏内 ・コンビニまで徒歩10分圏内 ■ ご希望の住まい探しをお手伝いします ━━━━━ ・・・ 物件の詳細・ご相談はお気軽にお問い合わせください。
| 所在地 | GoogleMaps |
| 価格 | 4,490万円 |
| 交通 | |
| その他費用 | - |
| 間取り | 3SLDK ※S・サービススペースは納戸です |
| 建物面積 | 112.19㎡(約33.93坪) |
| 土地面積 | 69.95㎡(約21.15坪) |
| 築年月 | 2026年02月築 |
| 建物構造 | 木造3階建 |
| 現況 | 空家 |
| 駐車場 | - |
| 土地権利 | 所有権 |
| 地目 | 宅地 |
| 接道状況 | 南西側: 約 6m (公道)、南東側: 約 4m (私道) |
| 建ぺい率 | 60% |
| 容積率 | 200% |
| 用途地域 | 第二種住居地域 |
| 都市計画 | 市街化区域 |
| 備考 | ※建物面積は自動車車庫面積14.90平米を含む |
| 引渡時期 | 即時 |
| 取引態様 | 仲介 |
| 更新日 | 2026年05月16日 |
| 次回更新予定 | 2026年05月30日 |
| 物件番号 | FN3AUA15 |
最新のAI技術を活用した相談サービスです。
お客様一人ひとりのニーズに合わせて最適な情報をご提供します。
リハウスAIチャットの詳しい説明はこちら
GoogleMaps
| スーパー | ミニコープ戸塚東店 約300m(徒歩4分) |
| 公園 | 戸塚佐藤第2公園 約240m(徒歩3分) |
| 病院 | 東川口病院 約880m(徒歩11分) |
| 小学校 | 川口市立戸塚東小学校 約700m(徒歩9分) |
| 中学校 | 川口市立戸塚中学校 約1520m(徒歩19分) |
| その他利便施設1 | ファミリーマート川口戸塚東店 約430m(徒歩6分) |
| その他利便施設2 | セブンイレブン川口戸塚東4丁目店 約550m(徒歩7分) |
0120-925-631
0120-925-631
物件の売却をご検討の方は、 はやめの査定依頼がおすすめです!
買い替えをご検討の方はこちら0120-925-631

