川口市飯塚1丁目
京浜東北・根岸線 川口駅 徒歩9分
3SLDK
建物面積:119.23㎡
土地面積:57.78㎡
2026年09月築(予定)
6,280万円



| 物件種別 | 新築戸建 |
| 所在地 | GoogleMaps |
| 交通 | 京浜東北・根岸線 川口駅 徒歩9分 |
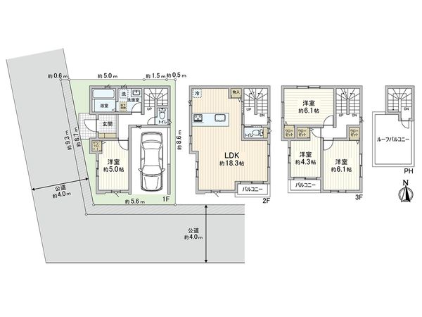
| 間取り | 4LDK |
| 建物面積 | 116.43㎡(約35.22坪) |
| 土地面積 | 55.47㎡(約16.77坪) |
| 築年月 | 2026年09月築(予定) |
-物件のおすすめポイント- ▼立地 ・JR京浜東北線「川口」駅徒歩9分 ▼建物の特徴 ・令和8年9月完成予定の3階建新築戸建 ・駐車スペース有(車種による) ・南×西の角地 ▼お部屋の特徴 ・LDK広々約18.3帖 ・南側道路につき日当たり良好 ・各居室に収納有 ▼周辺環境 ・飯塚小学校/約500m(徒歩7分) ・西中学校/約1400m(徒歩18分) ・オーケー川口店/約600m(徒歩8分) ・ローソン・スリーエフ川口二丁目店/約250m(徒歩4分) ・ららテラス川口/約890m(徒歩12分) ・西寿町公園/約260m(徒歩4分) ■ ご希望の住まい探しをお手伝いします ━━━━━・・・ 物件の詳細・ご相談はお気軽にお問い合わせください。
| 所在地 | GoogleMaps |
| 価格 | 6,280万円 |
| 交通 | 京浜東北・根岸線 川口駅 徒歩9分 |
| その他費用 | - |
| 間取り | 4LDK |
| 建物面積 | 116.43㎡(約35.22坪) |
| 土地面積 | 55.47㎡(約16.77坪) |
| 築年月 | 2026年09月築(予定) |
| 建物構造 | 木造3階建 |
| 現況 | 未完成 |
| 駐車場 | - |
| 土地権利 | 所有権 |
| 地目 | 宅地 |
| 接道状況 | 南側: 約 4m (公道)、西側: 約 4m (公道) |
| 建ぺい率 | 60% |
| 容積率 | 200% |
| 用途地域 | 準工業地域 |
| 都市計画 | 市街化区域 |
| 建築確認番号 | KS126-3120-50338号 |
| 備考 | ※建物面積にビルトイン車庫12.93平米、ルーフバルコニー面積3.72平米を含む |
| 引渡時期 | 2026年09月下旬以降 |
| 取引態様 | 仲介 |
| 更新日 | 2026年04月25日 |
| 次回更新予定 | 2026年05月09日 |
| 物件番号 | FN3BDA14 |
最新のAI技術を活用した相談サービスです。
お客様一人ひとりのニーズに合わせて最適な情報をご提供します。
リハウスAIチャットの詳しい説明はこちら
GoogleMaps
| スーパー | オーケー川口店 約600m(徒歩8分) |
| 公園 | 西寿町公園 約260m(徒歩4分) |
| 小学校 | 飯塚小学校 約500m(徒歩7分) |
| 中学校 | 西中学校 約1400m(徒歩18分) |
| その他利便施設1 | ローソン・スリーエフ川口二丁目店 約250m(徒歩4分) |
| その他利便施設2 | ららテラス川口 約890m(徒歩12分) |
0120-925-631
0120-925-631
物件の売却をご検討の方は、 はやめの査定依頼がおすすめです!
買い替えをご検討の方はこちら0120-925-631

