川口市南鳩ヶ谷4丁目
埼玉高速鉄道 南鳩ヶ谷駅 徒歩6分
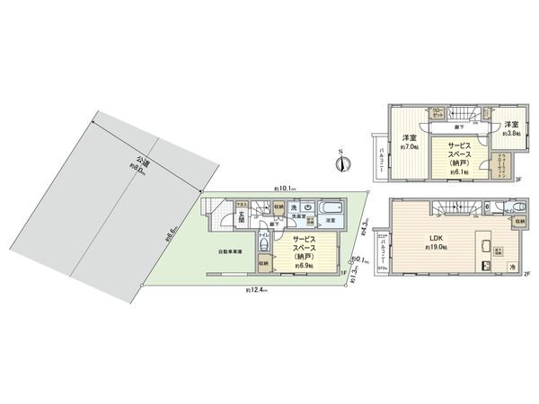
4LDK
建物面積:94.02㎡
土地面積:82.79㎡
2026年08月築(予定)
4,780万円



| 物件種別 | 新築戸建 |
| 所在地 | GoogleMaps |
| 交通 | 埼玉高速鉄道 南鳩ヶ谷駅 徒歩6分 |
| 間取り | 2SLDK ※S・サービススペースは納戸です |
| 建物面積 | 111.78㎡(約33.81坪) |
| 土地面積 | 63.58㎡(約19.23坪) |
| 築年月 | 2026年08月築(予定) |
-物件のおすすめポイント- ▼立地 ・埼玉高速鉄道「南鳩ヶ谷」駅 徒歩6分 ▼建物の特徴 ・カースペース1台分(車種による) ▼お部屋の特徴 ・約19帖の広々とした三面採光のLDK ・ライフスタイルに合わせて活用できるサービススペース(納戸)2部屋 ・収納力の高いウォークインクローゼット有 ・お子様の様子を見ながら料理ができる対面式キッチン ・雨の日の洗濯にも便利な浴室換気乾燥機有 ・来客時に便利なTVモニター付インターホン ・2階と3階のバルコニー2箇所 ▼周辺環境 ・ファミリーマート・・・約240m(徒歩3分) ・コモディイイダ・・・約400m(徒歩5分) ■ ご希望の住まい探しをお手伝いします ━━━━━・・・ 物件の詳細・ご相談はお気軽にお問い合わせください。
| 所在地 | GoogleMaps |
| 価格 | 4,780万円 |
| 交通 | 埼玉高速鉄道 南鳩ヶ谷駅 徒歩6分 |
| その他費用 | - |
| 間取り | 2SLDK ※S・サービススペースは納戸です |
| 建物面積 | 111.78㎡(約33.81坪) |
| 土地面積 | 63.58㎡(約19.23坪) |
| 築年月 | 2026年08月築(予定) |
| 建物構造 | 木造3階建 |
| 現況 | 未完成 |
| 駐車場 | 有 |
| 土地権利 | 所有権 |
| 地目 | 宅地 |
| 接道状況 | 北西側: 約 8m (公道) |
| 建ぺい率 | 60% |
| 容積率 | 200% |
| 用途地域 | 第二種住居地域 |
| 都市計画 | 市街化区域 |
| 建築確認番号 | 第KBI-YKH26-10-0566号 |
| 備考 | ・建物面積/111.78平米(車庫部分10.55平米を含む) ・間取/正しくは2LDK+2S(※S・サービススペースは納戸) |
| 引渡時期 | 相談 |
| 取引態様 | 仲介 |
| 更新日 | 2026年04月30日 |
| 次回更新予定 | 2026年05月14日 |
| 物件番号 | FRPBDA11 |
最新のAI技術を活用した相談サービスです。
お客様一人ひとりのニーズに合わせて最適な情報をご提供します。
リハウスAIチャットの詳しい説明はこちら
GoogleMaps
| スーパー | コモディイイダ 約400m(徒歩5分) |
| スーパー | グリーンズ 約450m(徒歩6分) |
| 公園 | 前田東公園 約180m(徒歩3分) |
| 小学校 | 中居小学校 約1010m(徒歩13分) |
| 中学校 | 八幡木中学校 約1320m(徒歩17分) |
| その他利便施設1 | ファミリーマート 約240m(徒歩3分) |
| その他利便施設2 | 島忠ホームズ 約290m(徒歩4分) |
| その他利便施設3 | マツモトキヨシ 約750m(徒歩10分) |
0120-923-679
0120-923-679
物件の売却をご検討の方は、 はやめの査定依頼がおすすめです!
買い替えをご検討の方はこちら0120-923-679

