横浜市港南区東芹が谷
京急本線 上大岡駅 バス13分 芹が谷山谷 停歩6分
4LDK
建物面積:99.15㎡
土地面積:131.72㎡
2026年06月築(予定)
4,380万円



| 物件種別 | 新築戸建 |
| 所在地 | GoogleMaps |
| 交通 | |
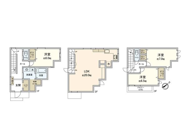
| 間取り | 3LDK |
| 建物面積 | 105.98㎡(約32.05坪) |
| 土地面積 | 87.89㎡(約26.58坪) |
| 築年月 | 2026年06月築(予定) |
■ おすすめポイント ━━━━━━━━━━━━━━━・・・・・ ○ 土地面積約87.89平米(約26.58坪) ○ 建物面積約105.98平米の3階建て3LDK ○ 約20.0帖の広々とした 南東向きLDK 〇 作業効率の良い壁付けL字型キッチン 〇 全洋室6帖以上 ○ ファミリークローゼット・シューズインクローゼットなど収納豊富 ○ 駐車スペースあり(車種による) ■ 担当者より ━━━━━━━━━━━━━━━・・・・・ 周辺環境や施設のご案内はもちろん、周辺物件も併せてご紹介できます。 また、購入に際しての諸費用、住宅ローン(月々の返済例)等、 資金計画のご相談も承っておりますので、ご興味がございましたら下方にございます、 「お問合せ」又は「見学予約」よりお問合せ下さい。 お電話でのご相談も受付けておりますので、 フリーコール「0120-854-254」までお気軽にお問合せ下さいませ。 プライバシーに配慮した個室の接客スペース、 キッズコーナー・おむつ替えスペースもご用意しております。 小さなお子様をお連れしてのご来店も歓迎です。 お車でお越しの際はミオカの駐車場をご利用ください。 駐車場サービス券をお渡ししております。 ご来店お待ちしております。
| 所在地 | GoogleMaps |
| 価格 | 4,380万円 |
| 交通 | |
| その他費用 | - |
| 間取り | 3LDK |
| 建物面積 | 105.98㎡(約32.05坪) |
| 土地面積 | 87.89㎡(約26.58坪) |
| 築年月 | 2026年06月築(予定) |
| 建物構造 | 木造3階建 |
| 現況 | 未完成 |
| 駐車場 | - |
| 土地権利 | 所有権 |
| 地目 | 宅地 |
| 接道状況 | - |
| 建ぺい率 | 60% |
| 容積率 | 200% |
| 用途地域 | 第一種住居地域 |
| 都市計画 | 市街化区域 |
| 建築確認番号 | 第2025SBC-確02288H号 |
| 備考 | - |
| 引渡時期 | 相談 |
| 取引態様 | 仲介 |
| 更新日 | 2026年05月23日 |
| 次回更新予定 | 2026年06月06日 |
| 物件番号 | FSPBGA55 |
最新のAI技術を活用した相談サービスです。
お客様一人ひとりのニーズに合わせて最適な情報をご提供します。
リハウスAIチャットの詳しい説明はこちら
GoogleMaps
| スーパー | @パレッテ!野庭店 約400m(徒歩5分) |
| スーパー | スーパーたまや野庭 約450m(徒歩6分) |
| スーパー | Fuji野庭店 約750m(徒歩10分) |
| 公園 | 野庭中央公園 約400m(徒歩5分) |
| 小学校 | 横浜市立下野庭小学校 約400m(徒歩5分) |
| 中学校 | 横浜市立丸山台中学校 約1000m(徒歩13分) |
| その他利便施設1 | ファミリーマート横浜野庭店 約260m(徒歩4分) |
| その他利便施設2 | サンドラッグ野庭店 約350m(徒歩5分) |
| その他利便施設3 | 野庭団地ショッピングセンター 約400m(徒歩5分) |
| その他利便施設4 | 横浜野庭郵便局 約600m(徒歩8分) |
0120-854-254
0120-854-254
物件の売却をご検討の方は、 はやめの査定依頼がおすすめです!
買い替えをご検討の方はこちら0120-854-254

