中野区江古田1丁目
都営大江戸線 新江古田駅 徒歩11分
3SLDK
建物面積:129.92㎡
土地面積:78.81㎡
2026年04月築(予定)
12,780万円



| 物件種別 | 新築戸建 |
| 所在地 | GoogleMaps |
| 交通 | |
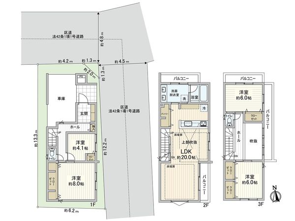
| 間取り | 4LDK |
| 建物面積 | 129.17㎡(約39.07坪) |
| 土地面積 | 80.15㎡(約24.24坪) |
| 築年月 | 2026年03月築(予定) |
返済計画を入力すると毎月のお支払い目安を表示できます
■ 交通アクセス ━━━━━━━━━━━━━━━・・・・・ ○ 東京メトロ丸ノ内方南支線「中野富士見町」駅 徒歩7分 ○ 東京メトロ方南支線「方南町」駅 徒歩14分 ■ おすすめポイント ━━━━━━━━━━━━━━━・・・・・ ○ 2駅利用可能で、通勤・通学時や都心へのアクセスに便利 ○ 閑静な住宅街にございます ○ 北東角地/陽当り・通風良好 ○ 吹抜けのある採光重視の間取り ○ 全居室収納があり、居住空間を有効に活用できます ○ 約20.0帖の広々としたLDK ○ LDKには足元を暖めてくれる床暖房 ○ 家族との会話が弾む対面式システムキッチン ○ キッチンにはパントリー付 ○ 車庫スペース有(車種による) ○ 子育てに優しい住環境です ・「区立みなみの小学校」…徒歩4分 ・「栄町公園」…徒歩7分 ○ スーパーやコンビニが徒歩4分圏内にあり、買い物に便利 ○ 宅配ボックス設置 ○ リビング上部吹き抜け・開放感あり ○ 洗面化粧台は2ボウルタイプ
| 所在地 | GoogleMaps |
| 価格 | 12,780万円 |
| 交通 | |
| その他費用 | - |
| 間取り | 4LDK |
| 建物面積 | 129.17㎡(約39.07坪) |
| 土地面積 | 80.15㎡(約24.24坪) |
| 築年月 | 2026年03月築(予定) |
| 建物構造 | 木造3階建 |
| 現況 | 未完成 |
| 駐車場 | 有 |
| 土地権利 | 所有権 |
| 地目 | 宅地 |
| 接道状況 | 北側: 約 4.8m (公道)、東側: 約 4.5m (公道) |
| 建ぺい率 | 60% |
| 容積率 | 150% |
| 用途地域 | 第一種低層住居専用地域 |
| 都市計画 | 市街化区域 |
| 建築確認番号 | 第25UDI1S建02791号 |
| 備考 | ・土地面積には隅切り部分約0.97平米を含みます。 ・1階床面積に車庫部分約12.83平米を含みます。 |
| 引渡時期 | 相談 |
| 取引態様 | 仲介 |
| 更新日 | 2025年12月05日 |
| 次回更新予定 | 2025年12月19日 |
| 物件番号 | FX3ASA06 |
最新のAI技術を活用した相談サービスです。
お客様一人ひとりのニーズに合わせて最適な情報をご提供します。
リハウスAIチャットの詳しい説明はこちら
GoogleMaps
| スーパー | まいばすけっと中野弥生町5丁目店 約270m(徒歩4分) |
| スーパー | オオゼキ杉並和田店 約560m(徒歩7分) |
| 公園 | 栄町公園 約510m(徒歩7分) |
| 病院 | 富士見クリニック 約500m(徒歩7分) |
| 小学校 | 中野区立みなみの小学校 約300m(徒歩4分) |
| 中学校 | 中野区立南中野中学校 約840m(徒歩11分) |
| その他利便施設1 | セブンイレブン中野弥生町5丁目店 約280m(徒歩4分) |
| その他利便施設2 | セブンイレブン南台店 約350m(徒歩5分) |
| その他利便施設3 | スギ薬局南台三丁目店 約300m(徒歩4分) |
| その他利便施設4 | 中野南台二郵便局 約430m(徒歩6分) |
0120-313-184
0120-313-184
物件の売却をご検討の方は、 はやめの査定依頼がおすすめです!
買い替えをご検討の方はこちら0120-313-184

