藤沢市羽鳥3丁目
東海道本線(東京~熱海) 辻堂駅 徒歩20分
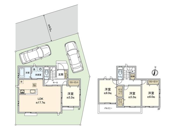
4LDK
建物面積:95.22㎡
土地面積:128.77㎡
2026年08月築(予定)
5,990万円



| 物件種別 | 新築戸建 |
| 所在地 | GoogleMaps |
| 交通 | |
| 間取り | 4LDK |
| 建物面積 | 96.47㎡(約29.18坪) |
| 土地面積 | 128.76㎡(約38.94坪) |
| 築年月 | 2026年08月築(予定) |
・羽鳥小学校まで約150m ・駐車スペース2台分 ・4LDK ・2026年8月完成予定 ・建物完成現場の見学可能です。
| 所在地 | GoogleMaps |
| 価格 | 5,990万円 |
| 交通 | |
| その他費用 | - |
| 間取り | 4LDK |
| 建物面積 | 96.47㎡(約29.18坪) |
| 土地面積 | 128.76㎡(約38.94坪) |
| 築年月 | 2026年08月築(予定) |
| 建物構造 | 木造2階建 |
| 現況 | 未完成 |
| 駐車場 | - |
| 土地権利 | 所有権 |
| 地目 | 宅地 |
| 接道状況 | - |
| 建ぺい率 | 50% |
| 容積率 | 80% |
| 用途地域 | 第一種低層住居専用地域 |
| 都市計画 | 市街化区域 |
| 建築確認番号 | 第HPA-26-04931-1号 |
| 備考 | - |
| 引渡時期 | 相談 |
| 取引態様 | 仲介 |
| 更新日 | 2026年04月30日 |
| 次回更新予定 | 2026年05月14日 |
| 物件番号 | FZ2BDA13 |
最新のAI技術を活用した相談サービスです。
お客様一人ひとりのニーズに合わせて最適な情報をご提供します。
リハウスAIチャットの詳しい説明はこちら
0120-053-031
0120-053-031
物件の売却をご検討の方は、 はやめの査定依頼がおすすめです!
買い替えをご検討の方はこちら0120-053-031

