春日井市大留町7丁目
中央本線 神領駅 徒歩19分
123.11㎡
建ぺい率:60%・60%
容積率:200%・200%
1,690万円



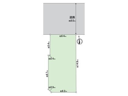
-物件のおすすめポイント- ▼立地 ・北側約6.0m公道に面した整形地 ・商業施設や公共施設が近隣に充実 ▼土地の特徴 ・土地面積約124.24平米(約37.58坪) ▼周辺環境 ・スーパーやクリニックが徒歩圏内 ・落ち着いた住環境で生活利便性良好 ■ ご希望の住まい探しをお手伝いします ━━━━━・・・ 物件の詳細・ご相談はお気軽にお問い合わせください。
| 所在地 | GoogleMaps |
| 価格 | 1,690万円 |
| 交通 | 中央本線 神領駅 徒歩19分 |
| その他費用 | - |
| 土地面積 | 124.24㎡(約37.58坪) |
| 現況 | 更地 |
| 土地権利 | 所有権 |
| 建築条件 | 有 |
| 地目 | 宅地 |
| 接道状況 | 北側: 約 6m (公道) |
| 建ぺい率 | 60%・60% |
| 容積率 | 200%・200% |
| 用途地域 | 第一種中高層住居専用地域/第一種住居地域 |
| 都市計画 | 市街化区域 |
| 国土法届出要否 | 否 |
| 備考 | - |
| 引渡時期 | 相談 |
| 取引態様 | 仲介 |
| 更新日 | 2026年04月24日 |
| 次回更新予定 | 2026年05月08日 |
| 物件番号 | FA9BAA26 |
最新のAI技術を活用した相談サービスです。
お客様一人ひとりのニーズに合わせて最適な情報をご提供します。
リハウスAIチャットの詳しい説明はこちら
GoogleMaps
| スーパー | 生鮮館やまひこ春日井店 約1000m(徒歩13分) |
| スーパー | MEGAドン・キホーテUNY気噴店 約900m(徒歩12分) |
| 公園 | 出川南公園 約1000m(徒歩13分) |
| 小学校 | 春日井市立出川小学校 約1200m(徒歩15分) |
| 中学校 | 春日井市立南城中学校 約2600m(徒歩33分) |
| その他利便施設1 | セブンイレブン春日井大留町店 約500m(徒歩7分) |
| その他利便施設2 | V・drug春日井神領店 約1150m(徒歩15分) |
0120-31-1931
0120-31-1931
物件の売却をご検討の方は、 はやめの査定依頼がおすすめです!
買い替えをご検討の方はこちら0120-31-1931

