川崎市麻生区百合丘2丁目
小田急電鉄小田原線 新百合ヶ丘駅 徒歩13分
「ヒルズ新百合ヶ丘」は、小田急電鉄小田原線の新百合ヶ丘駅に近接しており、日々の通勤や通学、お出かけに便利な立地に位置しています。駅からのアクセスが良好なため、移動の際の利便性を求める方に適した住環境と言えるでしょう。 この物件は、駅チカであることから、鉄道利用者にとって魅力的な選択肢となります。新百合ヶ丘エリアの利点を活かし、都心へのアクセスと落ち着いた住環境を両立させた生活を送ることができます。





| 所在地 | 神奈川県川崎市麻生区王禅寺西1丁目 GoogleMaps |
| 交通 | |
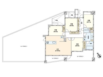
| 総戸数 | 37戸 |
| 分譲会社 | 野村不動産(株) |
| 周辺施設 | - |
| 築年月 | 2001年03月 築 |
| 階建 | 地上5階 地下1階建 |
| 建物構造 | 鉄筋コンクリート造 |
| 施工会社 | 鉄建建設(株) |
マンション管理適正評価とは、マンション管理組合申請のもと、一般社団法人マンション管理業協会が策定した評価基準に基づきマンション管理の専門家である評価者が、マンションの管理状態や管理組合運営を5つの観点で30項目をチェックし、現在の管理状況を6段階で評価した制度です。
※管理組合が公開を了承したマンションについて、マンション管理業協会よりデータを取得し評価点を当社ホームページに公開しています。
お客様一人一人の物件に合わせて、
不動産取引に精通したプロが売り出し価格・募集賃料をご提案いたします。
不動産無料査定をお考えの方
お客様からいただいた物件情報と周辺事例や成約取引事例等に基づき、価格をご提示いたします。
無料査定依頼万円~
万円
物件の広さを選択してください
※物件の広さを選択いただくと、面積ごとの参考相場価格が確認できます。選択可能な面積は、実際のマンションの面積帯とは異なりますので、ご注意ください。
ヒルズ新百合ヶ丘 周辺相場・購入検討者情報
「専有面積×価格」などの件数分布表で相場を把握いただけます。
川崎市麻生区の中古マンション購入情報をチェック三井のリハウスにご依頼いただいている方のうち、川崎市麻生区周辺のマンション購入検討者数をご希望価格帯別にご紹介します。
川崎市麻生区周辺におけるマンションの購入検討者数をご希望価格帯別に表示しています。
過去10年の取引実績件数を一覧で表示します
総取引件数
1,528件
マンション
713件
一戸建て・土地
815件
こちらのマンションで別の間取りや別の階などの新しい物件が売り出されたら、いち早くメールでご連絡いたします。
この物件が出たら教えて!お客様一人一人の物件に合わせて、不動産取引に精通したプロが売り出し価格・募集賃料をご提案いたします。
無料査定依頼売り出し中物件が見つからない場合、異なる条件の物件をご希望の場合など、お気軽にお問い合わせください。
担当店舗へ問い合わせる