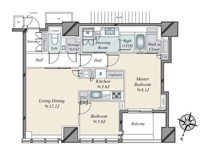
2LDK / 74.84㎡ / 10階
Brillia一番町
「Brillia Ichibancho」は、2019年11月に竣工したマンションで、東京メトロ半蔵門線の半蔵門駅から徒歩約3分の距離に位置しています。総戸数は106戸です。 都心に位置しながらも、駅近の利便性を享受できるこの物件は、日々の通勤や通学、さらには週末のお出かけにも便利な立地です。新しい生活を始めるにあたり、快適な住環境とアクセスの良さを両立させたい方に適した住まいと言えるでしょう。Brillia Ichibanchoで、都心での生活を満喫してください。





基本情報
| 所在地 | 東京都千代田区一番町 GoogleMaps |
| 交通 | |
| 総戸数 | 106戸 |
| 分譲会社 | 三菱地所レジデンス(株) 他 |
| 周辺施設 | - |
| 築年月 | 2019年11月 築 |
| 階建 | 地上18階 地下1階建 |
| 建物構造 | 鉄筋コンクリート造 |
| 施工会社 | 三井住友建設(株) |
交通情報の変化や、分譲会社の社名変更等により、現況(販売中物件)と異なる場合があります。
マンション管理適正評価
一般社団法人マンション管理業協会が
公開している管理評価
マンション管理適正評価とは、マンション管理組合申請のもと、一般社団法人マンション管理業協会が策定した評価基準に基づきマンション管理の専門家である評価者が、マンションの管理状態や管理組合運営を5つの観点で30項目をチェックし、現在の管理状況を6段階で評価した制度です。
※管理組合が公開を了承したマンションについて、マンション管理業協会よりデータを取得し評価点を当社ホームページに公開しています。
共用施設
担当店舗
三井のリハウスの無料査定
お客様一人一人の物件に合わせて、
不動産取引に精通したプロが売り出し価格・募集賃料をご提案いたします。
不動産無料査定をお考えの方
お客様からいただいた物件情報と周辺事例や成約取引事例等に基づき、価格をご提示いたします。
無料査定依頼参考相場価格
Brillia一番町
万円~
万円
物件の広さを選択してください
※物件の広さを選択いただくと、面積ごとの参考相場価格が確認できます。選択可能な面積は、実際のマンションの面積帯とは異なりますので、ご注意ください。
Brillia一番町 周辺相場・購入検討者情報
千代田区周辺での周辺相場(売り出し中物件情報)
「専有面積×価格」などの件数分布表で相場を把握いただけます。
千代田区の中古マンション購入情報をチェック購入検討者情報
三井のリハウスにご依頼いただいている方のうち、千代田区周辺のマンション購入検討者数をご希望価格帯別にご紹介します。
千代田区周辺での購入検討者
1,069人
千代田区周辺におけるマンションの購入検討者数をご希望価格帯別に表示しています。
取引実績
過去10年の取引実績件数を一覧で表示します
千代田区周辺での取引実績
総取引件数
1,095件
マンション
1,006件
一戸建て・土地
89件
アイコンについて
近隣のマンションを探す
千代田区の物件情報
近くのエリアから探す
他の駅から探す
東京メトロ半蔵門線
東京メトロ有楽町線
都営新宿線
よくあるご質問
物件が売り出されたら、
メールでお知らせします!
こちらのマンションで別の間取りや別の階などの新しい物件が売り出されたら、いち早くメールでご連絡いたします。
この物件が出たら教えて!売り出し通知メール登録者数3人
不動産無料査定
お客様一人一人の物件に合わせて、不動産取引に精通したプロが売り出し価格・募集賃料をご提案いたします。
無料査定依頼店舗へ問い合わせる
売り出し中物件が見つからない場合、異なる条件の物件をご希望の場合など、お気軽にお問い合わせください。
担当店舗へ問い合わせる










