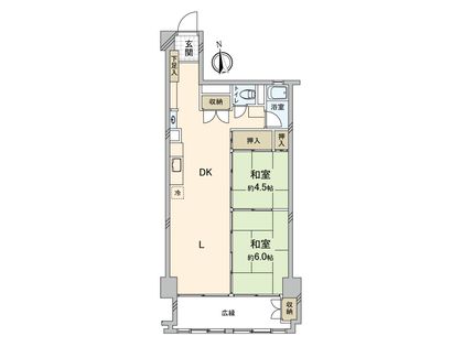
2DK / 58.39㎡ / 4階
西荻チャペルマンション
「西荻チャペルマンション」は、中央本線西荻窪駅から徒歩3分という利便性の高い立地に位置しています。駅近のため、日々の通勤や通学、さらには週末のお出かけにも便利なアクセスを提供します。 このマンションは、駅チカであることから、周辺には飲食店やコンビニエンスストアなどの生活に便利な施設が点在しており、日常の買い物にも困りません。 都心へのアクセスが良好でありながら、落ち着いた住環境を求める方に適した立地と言えるでしょう。生活の利便性と都市へのアクセスの良さを兼ね備えた「西荻チャペルマンション」で、快適な新生活を始めてみてはいかがでしょうか。
No Image
基本情報
| 所在地 | 東京都杉並区西荻北2丁目 GoogleMaps |
| 交通 | |
| 総戸数 | 31戸 |
| 分譲会社 | 谷口興業(株) |
| 周辺施設 | - |
| 築年月 | 1970年05月 築 |
| 階建 | 9階建 |
| 建物構造 | 鉄骨鉄筋コンクリート造 |
| 施工会社 | - |
交通情報の変化や、分譲会社の社名変更等により、現況(販売中物件)と異なる場合があります。
西荻窪駅の「住みやすさ」概要
担当店舗
※募集期間:2025/2/1 ~ 2025/3/31
※回答人数:27,509名
※対象者:三井のリハウスで不動産売買を経験された方
営業時間
10:00~18:00
定休日
毎週火曜日・水曜日※12/27(土)~1/3(土)年末年始休業期間
三井のリハウスの無料査定
お客様一人一人の物件に合わせて、
不動産取引に精通したプロが売り出し価格・募集賃料をご提案いたします。
不動産無料査定をお考えの方
お客様からいただいた物件情報と周辺事例や成約取引事例等に基づき、価格をご提示いたします。
無料査定依頼西荻チャペルマンション 周辺相場・購入検討者情報
杉並区周辺での周辺相場(売り出し中物件情報)
「専有面積×価格」などの件数分布表で相場を把握いただけます。
杉並区の中古マンション購入情報をチェック購入検討者情報
三井のリハウスにご依頼いただいている方のうち、杉並区周辺のマンション購入検討者数をご希望価格帯別にご紹介します。
杉並区周辺での購入検討者
2,552人
杉並区周辺におけるマンションの購入検討者数をご希望価格帯別に表示しています。
取引実績
過去10年の取引実績件数を一覧で表示します
杉並区周辺での取引実績
総取引件数
5,066件
マンション
2,367件
一戸建て・土地
2,699件
アイコンについて
近隣のマンションを探す
杉並区の物件情報
近くのエリアから探す
他の駅から探す
中央本線
中央・総武緩行線
よくあるご質問
物件が売り出されたら、
メールでお知らせします!
こちらのマンションで別の間取りや別の階などの新しい物件が売り出されたら、いち早くメールでご連絡いたします。
この物件が出たら教えて!不動産無料査定
お客様一人一人の物件に合わせて、不動産取引に精通したプロが売り出し価格・募集賃料をご提案いたします。
無料査定依頼店舗へ問い合わせる
売り出し中物件が見つからない場合、異なる条件の物件をご希望の場合など、お気軽にお問い合わせください。
担当店舗へ問い合わせる







