杉並区西荻北3丁目
中央本線 西荻窪駅 徒歩4分
1LDK / 30.95㎡
1971年11月築
2,210万円



| 物件種別 | 中古マンション |
| 所在地 | GoogleMaps |
| 交通 | |
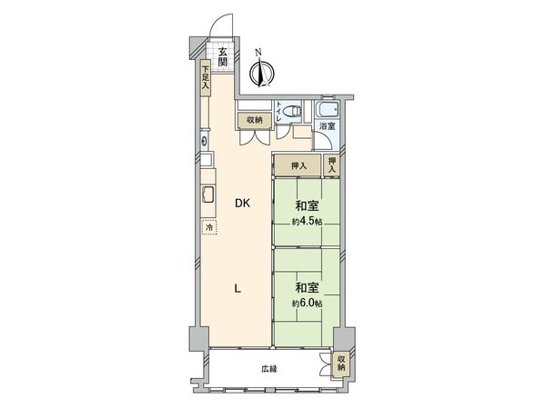
| 間取り | 2DK |
| 専有面積 | 58.39㎡(約17.66坪) |
| 築年月 | 1970年05月築 |
| 階数 / 階建 | 4階 / 地上9階建 |
| 向き | 南 |
【オーナーチェンジ物件】 〇月額賃料収入:120,000円(共益費込) 〇敷金:120,000円 〇表面利回り:5.0% 〇契約期間(普通賃貸借):2025/7/19~2027/7/18 ■ アクセス ━━━━━━━━━ 〇JR中央線・総武線「西荻窪」駅 徒歩3分 ■ 物件概要 ━━━━━━━━━ 〇専有面積:58.39平米(約17.66坪) 〇9階建4階部分南向き住戸 〇間取り:2DK ■ご自宅の『売却』も三井のリハウスにお任せください ・「売却が先か購入が先か」買替えたいけど、何から始めたら良いのか分からない。 ・所有不動産の相場を把握しておきたい。 ・自宅の住宅ローンが残っているので、無理のない資金計画を相談したい。 お住まいの購入から売却まで、お客様のご事情に合わせてトータルサポートいたします。 まずはフリーコールにて、ご所有不動産の概要をお申し付けください。 ※首都圏を中心に、杉並区周辺以外の不動産に関する売却のご相談も承ります。 (お取扱いできない地域もございますのでご了承ください)
| 所在地 | GoogleMaps |
| 価格 | 2,210万円 |
| 交通 | |
| 管理費等 | 9,600円 |
| 修繕積立金 | 8,800円 |
| その他費用 | エレベーター修繕費 1,100円 / 月 |
| 間取り | 2DK |
| 専有面積 | 58.39㎡(約17.66坪) |
| 築年月 | 1970年05月築 |
| 階数 / 階建 | 4階 / 地上9階建 |
| 向き | 南 |
| バルコニー | - |
| 現況 | 賃貸中 |
| 駐車場 | - |
| 建物構造 | 鉄骨鉄筋コンクリート造 |
| 総戸数 | 32戸 |
| 管理会社 | (株)興栄商事 |
| 管理形態 | 管理会社に全部委託 |
| 管理員の 勤務形態 | 日勤 |
| 土地権利 | 旧法借地権(賃借権) 借地期間・借地料(月額) 2053年07月まで 3,260円 |
| 分譲会社 | - |
| 備考 | ※利回りは、販売価格に対する年間の賃料収入(共益費等を含む)の割合で、公租公課その他当該物件を維持するために必要な費用の控除前のものです。なお、想定賃料・想定利回りは、賃料相場をもとに空室部分の賃料を加え満室時を想定して算出したものです。 ※賃料収入は、将来にわたって確実に得られることを保証するものではありません。 (調査日: 2025年09月12日現在) |
| 引渡時期 | 相談 |
| 取引態様 | 仲介 |
| 更新日 | 2026年05月18日 |
| 次回更新予定 | 2026年06月01日 |
| 物件番号 | F9FBGA18 |
最新のAI技術を活用した相談サービスです。
お客様一人ひとりのニーズに合わせて最適な情報をご提供します。
リハウスAIチャットの詳しい説明はこちら
GoogleMaps
| スーパー | 西友西荻窪店 約400m(徒歩5分) |
| スーパー | まいばすけっと西荻窪駅東店 約500m(徒歩7分) |
| スーパー | ライフ西荻窪店 約500m(徒歩7分) |
| 公園 | 西荻窪平和児童遊園 約400m(徒歩5分) |
| その他利便施設1 | 西荻窪駅(JR東日本 中央本線) 約240m(徒歩3分) |
| その他利便施設2 | ローソン西荻窪駅北店 約150m(徒歩2分) |
| その他利便施設3 | セブンイレブン西荻窪駅北口店 約240m(徒歩3分) |
| その他利便施設4 | ファミリーマート杉並西荻北二丁目店 約150m(徒歩2分) |
| その他利便施設5 | サンドラッグ西荻窪南口店 約320m(徒歩4分) |
| その他利便施設6 | 西荻窪郵便局 約150m(徒歩2分) |
三井不動産リアルティ株式会社
国土交通大臣(15)第777号
0120-133-304
0120-133-304
物件の売却をご検討の方は、 はやめの査定依頼がおすすめです!
買い替えをご検討の方はこちら0120-133-304

