杉並区今川3丁目
中央本線 西荻窪駅 徒歩20分
2LDK
建物面積:79.98㎡
土地面積:81.22㎡
2006年08月築
6,980万円



| 物件種別 | 中古戸建 |
| 所在地 | GoogleMaps |
| 交通 | |
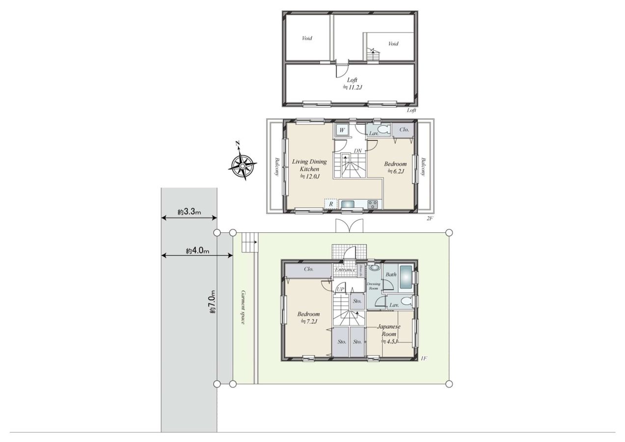
| 間取り | 3LDK |
| 建物面積 | 76.86㎡(約23.25坪) |
| 土地面積 | 81.96㎡(約24.79坪) ※セットバック約4.47㎡を含む ※別途私道約78.8㎡有 (共有持分 1/8) |
| 築年月 | 2005年05月築 |
予約制内覧会を開催します!
| 開催日 | 5月9日(土)11:00 ~ 17:00 5月10日(日)11:00 ~ 17:00 5月16日(土)11:00 ~ 17:00 5月17日(日)11:00 ~ 17:00 |
|---|
-物件のおすすめポイント- ▼立地 ・JR中央本線 「荻窪」駅 徒歩17分 ・JR中央本線「西荻窪」駅徒歩17分 ・東京メトロ丸ノ内線 「荻窪」駅 徒歩17分 ・JR中央・総武線・東京メトロ丸ノ内線「荻窪」駅 バス7分「八丁」停徒歩4分 ・西武新宿線「上井草」駅 バス10分「八丁」停徒歩3分 ▼ポイント ・2005年5月築 ・建物面積76.86平米 3LDK ・整形地 ・2面バルコニー ・1階洋室約7.2帖、2階洋室6.2帖と広々とした室内 ・約11.2帖のロフト、各居室に収納があり収納力豊富です ■ ご希望の住まい探しをお手伝いします ━━━━━ ・・・ 物件の詳細・ご相談はお気軽にお問い合わせください。
室内を内覧しているように物件を見学することができます。
| 所在地 | GoogleMaps |
| 価格 | 6,980万円 |
| 交通 | |
| その他費用 | - |
| 間取り | 3LDK |
| 建物面積 | 76.86㎡(約23.25坪) |
| 土地面積 | 81.96㎡(約24.79坪) ※セットバック約4.47㎡を含む ※別途私道約78.8㎡有 (共有持分 1/8) |
| 築年月 | 2005年05月築 |
| 建物構造 | 軽量鉄骨造2階建 |
| 現況 | 空家 |
| 駐車場 | 無 |
| 土地権利 | 所有権 |
| 地目 | 宅地 |
| 接道状況 | 西側: 約 4m (私道) |
| 建ぺい率 | 50% |
| 容積率 | 100% |
| 用途地域 | 第一種低層住居専用地域 |
| 都市計画 | 市街化区域 |
| 備考 | 本物件は建築確認申請と異なる建物となっております。 建築確認時は2階建てとなっており、現状は3階建てとなります。そのため、建築基準法に定める容積率の制限を超えています。再建築の際には、現在と同規模の建築物は建築できません。詳細につきましては担当へご確認ください。 |
| 引渡時期 | 相談 |
| 取引態様 | 仲介 |
| 更新日 | 2026年04月23日 |
| 次回更新予定 | 2026年05月07日 |
| 物件番号 | F23BBA03 |
最新のAI技術を活用した相談サービスです。
お客様一人ひとりのニーズに合わせて最適な情報をご提供します。
リハウスAIチャットの詳しい説明はこちら
GoogleMaps
| スーパー | まいばすけっと杉並桃井3丁目店 約490m(徒歩7分) |
| スーパー | ヤオコー杉並桃井店 約610m(徒歩8分) |
| 公園 | 区立桃井原っぱ公園 約510m(徒歩7分) |
| 小学校 | 区立桃井第一小学校 約350m(徒歩5分) |
| 中学校 | 区立井荻中学校 約1200m(徒歩15分) |
0120-133-304
リノベーション工事の可能範囲については、本物件の管理組合規約等により一定の制限が加わる場合がございます。詳細については、工事内容の確定後に判明する部分もありますので、この点については事前にお含みおきください。
リノベーションに関するお問い合わせ0120-133-304
物件の売却をご検討の方は、 はやめの査定依頼がおすすめです!
買い替えをご検討の方はこちら0120-133-304

