杉並区上荻3丁目
中央・総武緩行線 西荻窪駅 徒歩15分
3SLDK
建物面積:161.23㎡
土地面積:157.43㎡
新築
24,500万円



| 物件種別 | 中古戸建 |
| 所在地 | GoogleMaps |
| 交通 | |
| 間取り | 6LDK |
| 建物面積 | 269.48㎡(約81.51坪) |
| 土地面積 | 315.22㎡(約95.35坪) ※別途私道約111.22㎡有 |
| 築年月 | 1992年12月築 |
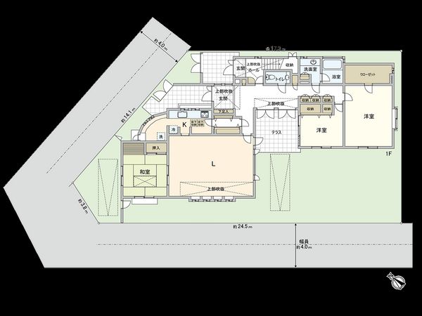
■完 全 2 世 帯 住 宅 1階:147.44平米(間取:3L・DK) 2階:122.04平米(間取:3LDK) 〇2路線2駅利用可能 井の頭線「西永福」駅 徒歩9分 京王本線「桜上水」駅 徒歩13分 〇土地面積:426.44平米 ※道路部分約111.22平米含む 〇室内壁は漆喰を採用しナチュラルな質感が魅力です 〇1・2階ともリビング、ダイニング、洋室は南西向きのため日当たり良好 〇リビングは1,2階とも22帖の2面採光 〇北側、南西側4m道路に接道する角地 〇南面の間口は約24.5m 〇第1種低層住宅の閑静な住宅地 〇小中学校や公園も近く、子育て環境良好です おおぞら公園、小学校まで徒歩7分以内の好立地 〇駐車スペースは敷地内2台確保(車種による) ※3台駐車も可能 ※別途要リフォーム 【お住みかえをご検討中のお客様】 ご自宅の『売却』も三井のリハウスにお任せください ・「売却が先か購入が先か」買替えたいけど、 何から始めたら良いのか分からない。 ・所有不動産の相場を把握しておきたい。 ・自宅の住宅ローンが残っているので、 無理のない資金計画を相談したい。 お住まいの購入から売却まで、お客様のご事情に合わせてトータルサポートいたします。 まずはフリーコールにて、ご所有不動産の概要をお申し付けください。 (お取扱いできない地域もございますのでご了承ください) 『無料査定のお申込みは』 フリーコール:0120ー317-631
| 所在地 | GoogleMaps |
| 価格 | 24,500万円 |
| 交通 | |
| その他費用 | - |
| 間取り | 6LDK |
| 建物面積 | 269.48㎡(約81.51坪) |
| 土地面積 | 315.22㎡(約95.35坪) ※別途私道約111.22㎡有 |
| 築年月 | 1992年12月築 |
| 建物構造 | 木造2階建 |
| 現況 | 空家 |
| 駐車場 | - |
| 土地権利 | 所有権 |
| 地目 | 宅地 |
| 接道状況 | 北側: 約 4m (公道)、南西側: 約 4m (公道) |
| 建ぺい率 | 40% |
| 容積率 | 80% |
| 用途地域 | 第一種低層住居専用地域 |
| 都市計画 | 市街化区域 |
| 備考 | 前記土地面積は、登記簿面積から2026年1月実施の仮測量図面の道路負担面積111.22平米を引いた面積です。仮測量面積315.22平米・南側通路面積111.22平米。(2026年1月実施) 一部都市計画道路区域内(計画決定) |
| 引渡時期 | 相談 |
| 取引態様 | 仲介 |
| 更新日 | 2026年04月16日 |
| 次回更新予定 | 2026年04月30日 |
| 物件番号 | F34BAA03 |
最新のAI技術を活用した相談サービスです。
お客様一人ひとりのニーズに合わせて最適な情報をご提供します。
リハウスAIチャットの詳しい説明はこちら
GoogleMaps
| スーパー | いなげや杉並桜上水店 約880m(徒歩11分) |
| 小学校 | 杉並区立高井戸第三小学校 約552m(徒歩7分) |
| 中学校 | 杉並区立向陽中学校 約477m(徒歩6分) |
| その他利便施設1 | 下高井戸おおぞら公園 約553m(徒歩7分) |
| その他利便施設2 | セブンイレブン杉並西永福駅前店 約680m(徒歩9分) |
| その他利便施設3 | セブンイレブン桜上水駅北店 約800m(徒歩10分) |
| その他利便施設4 | ココカラファイン桜上水北口店 約941m(徒歩12分) |
| その他利便施設5 | マクドナルド20号桜上水店 約1000m(徒歩13分) |
| その他利便施設6 | ドン・キホーテピカソ桜上水店 約979m(徒歩13分) |
| その他利便施設7 | 杉並桜上水郵便局 約878m(徒歩11分) |
0120-317-631
0120-317-631
物件の売却をご検討の方は、 はやめの査定依頼がおすすめです!
買い替えをご検討の方はこちら0120-317-631

