江東区森下5丁目
都営新宿線 菊川駅 徒歩5分
2SLDK
建物面積:101.64㎡
土地面積:63.5㎡
2012年03月築
14,000万円



| 物件種別 | 店舗(一棟) |
| 所在地 | GoogleMaps |
| 交通 | |
| 間取り | 1K |
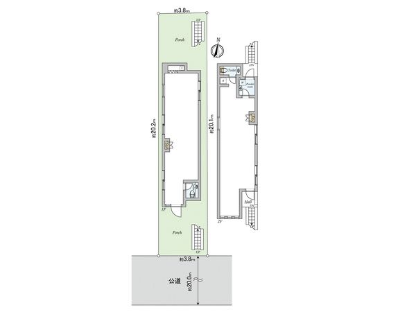
| 建物面積 | 75.72㎡(約22.9坪) |
| 土地面積 | 77.21㎡(約23.35坪) |
| 築年月 | 2016年06月築 |
| 想定賃料 (年間) | 5,280,000円(満室時想定) |
| 想定利回り | 3.7% |
| 賃貸状況 | 総戸数2戸、稼働戸数2戸 ※総戸数には住戸数以外の店舗等の戸数も含まれています。 |
| 備考 | ※利回りは、販売価格に対する年間の賃料収入(共益費等を含む)の割合で、公租公課その他当該物件を維持するために必要な費用の控除前のものです。なお、想定賃料・想定利回りは、賃料相場をもとに空室部分の賃料を加え満室時を想定して算出したものです。 ※賃料収入は、将来にわたって確実に得られることを保証するものではありません。 (調査日: 2025年12月04日現在) |
■ アクセス ━━━━━━━━━━━━━━━・・・・・ ○ りんかい線「東雲」駅 徒歩6分 ■ おすすめポイント ━━━━━━━━━━━━━━━・・・・・ 〇 大通りに面した立地(幅員約20m) 〇 旭化成ホームズ施工 〇 2016年築、鉄骨造2階建 〇 2戸(1階・2階)とも美容室へ賃貸中 (2021年2月より営業中) 〇 東側隣地は「ローソンしののめ店」
| 所在地 | GoogleMaps |
| 価格 | 14,000万円 |
| 交通 | |
| その他費用 | - |
| 間取り | 1K |
| 建物面積 | 75.72㎡(約22.9坪) |
| 土地面積 | 77.21㎡(約23.35坪) |
| 築年月 | 2016年06月築 |
| 建物構造 | 鉄骨造2階建 |
| 現況 | 賃貸中 |
| 駐車場 | - |
| 土地権利 | 所有権 |
| 地目 | 宅地 |
| 接道状況 | 南側: 約 20m (公道) |
| 建ぺい率 | 60% |
| 容積率 | 400% |
| 用途地域 | 準工業地域 |
| 都市計画 | 市街化区域 |
| 備考 | 賃貸中(賃貸借契約引継要) |
| 引渡時期 | 相談 |
| 取引態様 | 仲介 |
| 更新日 | 2026年04月30日 |
| 次回更新予定 | 2026年05月14日 |
| 物件番号 | F7DAWA02 |
GoogleMaps
| スーパー | 東武ストア東雲店 約470m(徒歩6分) |
| 公園 | 東雲公園 約380m(徒歩5分) |
| 病院 | 東雲クリニック 約370m(徒歩5分) |
| その他利便施設1 | ローソンしののめ店 約30m(徒歩1分) |
| その他利便施設2 | イオン東雲店 約620m(徒歩8分) |
| その他利便施設3 | 有明ガーデン 約1150m(徒歩15分) |
| その他利便施設4 | 有明ガーデン 約1160m(徒歩15分) |
0120-504-337
0120-504-337
物件の売却をご検討の方は、 はやめの査定依頼がおすすめです!
買い替えをご検討の方はこちら0120-504-337
