名古屋市名東区富が丘
名古屋市東山線 藤が丘駅 徒歩9分
4LDK
建物面積:116.29㎡
土地面積:131.29㎡
1997年11月築
4,480万円



| 物件種別 | 中古戸建 |
| 所在地 | GoogleMaps |
| 交通 | 名古屋市東山線 星ヶ丘駅 バス14分 西山本通3丁目 停歩2分 |
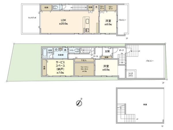
| 間取り | 2SLDK ※S・サービススペースは納戸です |
| 建物面積 | 148.08㎡(約44.79坪) |
| 土地面積 | 137.28㎡(約41.52坪) |
| 築年月 | 2017年03月築 |
返済計画を入力すると毎月のお支払い目安を表示できます
-物件のおすすめポイント- ▼建物の特徴 ・2017年3月築 ・建物面積約44.79坪のゆとりある広さ ・車庫付き(車種による) ・広々としたバルコニー付き ▼お部屋の特徴 ・広々とした約20帖のLDK ・バルコニーに面した明るい洋室 ・全居室南東向き ▼設備 ・使い勝手の良い納戸付き ・ウォークインクローゼット等収納充実 ▼周辺環境 ・セブンイレブン名古屋西山本通3丁目店まで約80m(徒歩1分) ・西山小学校まで約630m(徒歩8分) ・神丘中学校まで約960m(徒歩12分) ■ ご希望の住まい探しをお手伝いします ━━━━━・・・ 物件の詳細・ご相談はお気軽にお問い合わせください。
| 所在地 | GoogleMaps |
| 価格 | 4,480万円 |
| 交通 | 名古屋市東山線 星ヶ丘駅 バス14分 西山本通3丁目 停歩2分 |
| その他費用 | - |
| 間取り | 2SLDK ※S・サービススペースは納戸です |
| 建物面積 | 148.08㎡(約44.79坪) |
| 土地面積 | 137.28㎡(約41.52坪) |
| 築年月 | 2017年03月築 |
| 建物構造 | 木造3階建 |
| 現況 | 空家 |
| 駐車場 | - |
| 土地権利 | 所有権 |
| 地目 | 宅地 |
| 接道状況 | 北東側: 約 15m (公道) |
| 建ぺい率 | 60%・50% |
| 容積率 | 200%・150% |
| 用途地域 | 第二種住居地域/第一種低層住居専用地域 |
| 都市計画 | 市街化区域 |
| 備考 | - |
| 引渡時期 | 相談 |
| 取引態様 | 仲介 |
| 更新日 | 2026年01月10日 |
| 次回更新予定 | 2026年01月24日 |
| 物件番号 | FA6BAA01 |
最新のAI技術を活用した相談サービスです。
お客様一人ひとりのニーズに合わせて最適な情報をご提供します。
リハウスAIチャットの詳しい説明はこちら
GoogleMaps
| スーパー | 全日食チェーン西山ストア 約420m(徒歩6分) |
| 公園 | 西里公園 約160m(徒歩2分) |
| 病院 | 星のまちクリニック 約320m(徒歩4分) |
| 小学校 | 西山小学校 約630m(徒歩8分) |
| 中学校 | 神丘中学校 約960m(徒歩12分) |
| その他利便施設1 | ドラッグスギヤマ西山台店 約150m(徒歩2分) |
| その他利便施設2 | セブンイレブン名古屋西山本通3丁目店 約80m(徒歩1分) |
| その他利便施設3 | 名古屋西山郵便局 約350m(徒歩5分) |
0120-37-0031
0120-37-0031
物件の売却をご検討の方は、 はやめの査定依頼がおすすめです!
買い替えをご検討の方はこちら0120-37-0031

