小平市津田町2丁目
西武国分寺線 鷹の台駅 徒歩14分
3LDK
建物面積:70.59㎡
土地面積:90.23㎡
2026年05月築(予定)
3,780万円



| 物件種別 | 中古戸建 |
| 所在地 | GoogleMaps |
| 交通 | |
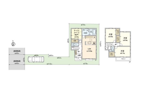
| 間取り | 3SLDK ※S・サービススペースは納戸です |
| 建物面積 | 88.6㎡(約26.8坪) |
| 土地面積 | 103.3㎡(約31.24坪) ※路地状敷地部分約25.5㎡含む |
| 築年月 | 2014年06月築 |
■ おすすめポイント ――――――――――・・・・・ 〇【花小金井】【小平】2駅利用可能 〇対面式キッチンの約13帖のLDK 〇2階洋室はすべて6帖以上 〇全居室収納・床下収納有 ■ アクセス ―――――――――――――・・・・・ 〇西武新宿線「花小金井」駅 徒歩20分 ■ ライフインフォメーション ――――――――・・・・・ 〇いなげやina21小平天神店 徒歩12分 (約890m) 〇ファミリーマート 小平天神町四丁目店 徒歩6分(約430m) 〇ローソン 小平新小金井街道店 徒歩3分 (約180m) 〇こだいら内科・心臓内科 徒歩11分 (約850m) 〇天神さくらそう公園 徒歩10分(約730m) 〇小平市立小平第九小学校 徒歩8分 (約610m) 〇小平市立小平第三中学校 徒歩7分(約510m)
| 所在地 | GoogleMaps |
| 価格 | 3,780万円 |
| 交通 | |
| その他費用 | - |
| 間取り | 3SLDK ※S・サービススペースは納戸です |
| 建物面積 | 88.6㎡(約26.8坪) |
| 土地面積 | 103.3㎡(約31.24坪) ※路地状敷地部分約25.5㎡含む |
| 築年月 | 2014年06月築 |
| 建物構造 | 木造2階建 |
| 現況 | 居住中 |
| 駐車場 | 有 |
| 土地権利 | 所有権 |
| 地目 | 宅地 |
| 接道状況 | 西側: 約 4m (私道) |
| 建ぺい率 | 60% |
| 容積率 | 200% |
| 用途地域 | 準工業地域 |
| 都市計画 | 市街化区域 |
| 備考 | ※私道持分有 |
| 引渡時期 | 相談 |
| 取引態様 | 仲介 |
| 更新日 | 2026年04月05日 |
| 次回更新予定 | 2026年04月19日 |
| 物件番号 | FM7AUA12 |
最新のAI技術を活用した相談サービスです。
お客様一人ひとりのニーズに合わせて最適な情報をご提供します。
リハウスAIチャットの詳しい説明はこちら
GoogleMaps
| スーパー | いなげやina21小平天神店 約890m(徒歩12分) |
| 公園 | 天神さくらそう公園 約730m(徒歩10分) |
| 病院 | こだいら内科・心臓内科 約850m(徒歩11分) |
| 小学校 | 小平市立小平第九小学校 約610m(徒歩8分) |
| 中学校 | 小平市立小平第三中学校 約510m(徒歩7分) |
| その他利便施設1 | ファミリーマート小平天神町四丁目店 約430m(徒歩6分) |
| その他利便施設2 | ローソン 小平新小金井街道店 約180m(徒歩3分) |
三井不動産リアルティ株式会社
国土交通大臣(15)第777号
0120-558-321
0120-558-321
物件の売却をご検討の方は、 はやめの査定依頼がおすすめです!
買い替えをご検討の方はこちら0120-558-321

