川崎市幸区南加瀬2丁目
横須賀線 新川崎駅 徒歩20分
2SLDK
建物面積:109.3㎡
土地面積:104.77㎡
新築
6,780万円



| 物件種別 | 中古戸建 |
| 所在地 | GoogleMaps |
| 交通 | |
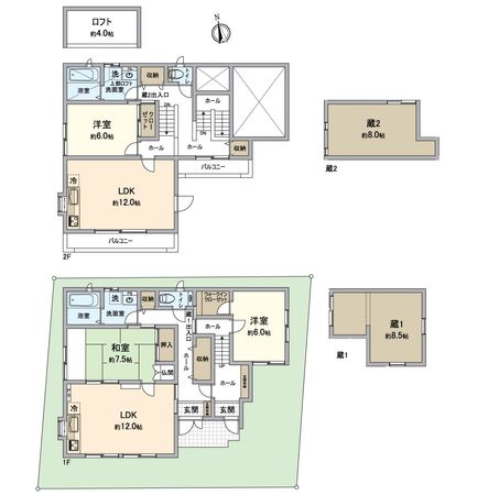
| 間取り | 3LDK |
| 建物面積 | 129.59㎡(約39.2坪) |
| 土地面積 | 130.7㎡(約39.53坪) |
| 築年月 | 2008年03月築 |
■ アクセス ━━━━━━━━━━━━━━━・・・・・ ○ JR南武線「矢向」駅徒歩22分 ○ JR横須賀線・湘南新宿ライン「新川崎」駅徒歩24分 ○ JR南武線・東海道線ほか「川崎」駅バス15分停歩3分 ■ おすすめポイント━━━━━━・・・・・ ○ ミサワホーム施工の注文住宅 ○ 蔵のある住宅 ○ 南側道路に面し陽当たり良好 ○ 閑静な住宅街で住環境良好 ○ 教育施設や利便施設が身近に揃い、家族みんなが暮らしやすい住環境 ○ 延べ床面積129.59平米(39.2坪) ○ 2箇所の蔵の他、ロフトもございます ○ 二世帯住宅(1LDK+2LDK)としてもご利用いただけます ○ 全居室6帖以上 ○ リビングには電動シャッター採用 ○ 駐車スペース有(車種による)
| 所在地 | GoogleMaps |
| 価格 | 6,780万円 |
| 交通 | |
| その他費用 | - |
| 間取り | 3LDK |
| 建物面積 | 129.59㎡(約39.2坪) |
| 土地面積 | 130.7㎡(約39.53坪) |
| 築年月 | 2008年03月築 |
| 建物構造 | 木造2階建 |
| 現況 | 空家 |
| 駐車場 | 有 |
| 土地権利 | 所有権 |
| 地目 | 宅地 |
| 接道状況 | 南西側: 約 4m (公道) |
| 建ぺい率 | 60% |
| 容積率 | 160%(用途地域別の前面道路幅員による容積率制限) |
| 用途地域 | 第一種中高層住居専用地域 |
| 都市計画 | 市街化区域 |
| 備考 | - |
| 引渡時期 | 相談 |
| 取引態様 | 仲介 |
| 更新日 | 2026年04月18日 |
| 次回更新予定 | 2026年05月02日 |
| 物件番号 | FR3AUA10 |
最新のAI技術を活用した相談サービスです。
お客様一人ひとりのニーズに合わせて最適な情報をご提供します。
リハウスAIチャットの詳しい説明はこちら
GoogleMaps
| スーパー | まいばすけっと川崎小倉2丁目店 約160m(徒歩2分) |
| スーパー | サミットストア南加瀬店 約550m(徒歩7分) |
| 小学校 | 川崎市立小倉小学校 約210m(徒歩3分) |
| 中学校 | 川崎市立南加瀬中学校 約800m(徒歩10分) |
| その他利便施設1 | クロスガーデン川崎 約720m(徒歩9分) |
| その他利便施設2 | セブンイレブン川崎小倉神社前店 約360m(徒歩5分) |
| その他利便施設3 | ツルハドラッグ小倉店 約250m(徒歩4分) |
0120-313-770
0120-313-770
物件の売却をご検討の方は、 はやめの査定依頼がおすすめです!
買い替えをご検討の方はこちら0120-313-770

