生駒市俵口町
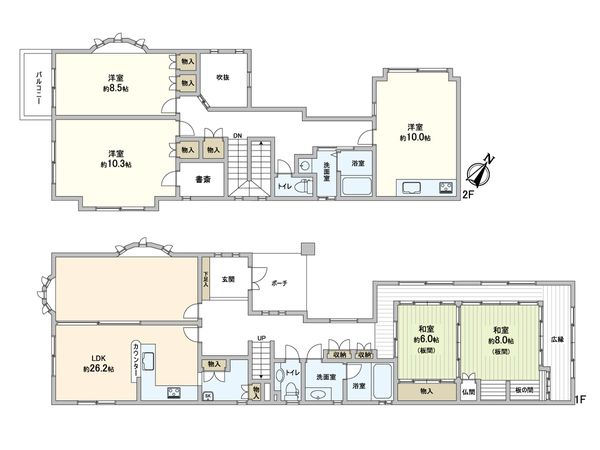
5LDK/217.75㎡(約65.86坪)
6,340万円



物件情報
おすすめポイント
周辺情報
取扱店舗
| 物件種別 | 中古戸建 |
| 所在地 | GoogleMaps |
| 交通 | |
| 間取り | 5LDK |
| 建物面積 | 217.75㎡(約65.86坪) |
| 土地面積 | 246.79㎡(約74.65坪) |
| 築年月 | 1993年03月築 |
この物件情報を共有する
おすすめポイント
設備
- 浴室乾燥機
- TVモニタ付インターホン
特徴
- 前面道路幅員6m以上
- 吹抜け
- 庭3坪以上
-おすすめポイント- 〇建物面積:217.75平米(約65.86坪) 〇三井ハウス施工の邸 〇電動シャッター付車庫2台分有り(車種による制限有り) 〇1階和室の雨戸は電動シャッターです(3か所) 〇2階洋室約10帖には、システムキッチンあり 〇浴室・洗面所・トイレ各2カ所あり 〇2世帯住宅としてもご利用いただけます ▼内外装リフォーム履歴 【2023年1月】擁壁および塀にタイル設置・1階和室2間フロアー新調・1階浴室入替・2階書斎のクロス貼替・2階洋室約10帖にシステムキッチン増設・2階洗面所増設 ・2階浴室増設 【2021年1月】屋根・外壁塗装(北西・北東・南西側) 【2018年1月】二重サッシ(LD・和室)・電動シャッター設置
リノベーション&リフォーム情報
台所(キッチン)交換 | バスルーム交換 |
洗面化粧台交換 |
水回り(キッチン、浴室、洗面所)(2023年1月)
外装(外壁、屋根)(2021年1月)
物件情報
| 所在地 | GoogleMaps |
| 価格 | 6,340万円 |
| 交通 | |
| その他費用 | - |
| 間取り | 5LDK |
| 建物面積 | 217.75㎡(約65.86坪) |
| 土地面積 | 246.79㎡(約74.65坪) |
| 築年月 | 1993年03月築 |
| 建物構造 | 木造2階建 |
| 現況 | 居住中 |
| 駐車場 | 有 |
| 土地権利 | 所有権 |
| 地目 | 宅地 |
| 接道状況 | 北西側: 約 16m (公道) |
| 建ぺい率 | 60% |
| 容積率 | 200% |
| 用途地域 | 第一種住居地域 |
| 都市計画 | 市街化区域 |
| 備考 | - |
| 引渡時期 | 相談 |
| 取引態様 | 仲介 |
| 更新日 | 2026年04月26日 |
| 次回更新予定 | 2026年05月10日 |
| 物件番号 | FXUAWA08 |
この物件のことを
AIに聞いてみませんか?
最新のAI技術を活用した相談サービスです。
お客様一人ひとりのニーズに合わせて最適な情報をご提供します。
リハウスAIチャットの詳しい説明はこちら

周辺情報
GoogleMaps
| スーパー | コープいこま 約650m(徒歩9分) |
| スーパー | ジャパン生駒店 約380m(徒歩5分) |
| 公園 | 新生駒台第1公園 約280m(徒歩4分) |
| 病院 | 医療法人和幸会阪奈中央病院 約400m(徒歩5分) |
| その他利便施設1 | ホームセンターコーナン生駒店 約620m(徒歩8分) |
| その他利便施設2 | ファミリーマート生駒俵口店 約320m(徒歩4分) |
| その他利便施設3 | キリン堂生駒店 約840m(徒歩11分) |
取扱店舗
三井のリハウス 学園前センター
- 営業時間10:00~18:00
- 定休日毎週火曜日・水曜日
0120-389-321
あなたへのおすすめ
生駒市の物件情報
この物件を見学してみませんか?
この物件についてお問い合わせ
物件・住環境の詳しい情報、購入・ローン相談など、ささいなことでもお気軽にお問い合わせください。三井のリハウス 学園前センター
- 営業時間10:00~18:00
- 定休日毎週火曜日・水曜日
0120-389-321

物件の売却をご検討の方は、 はやめの査定依頼がおすすめです!
買い替えをご検討の方はこちら見学予約
お問い合わせ
0120-389-321
- 営業時間 10:00~18:00
- 定休日 毎週火曜日・水曜日



