長岡京市奥海印寺東山
阪急京都線 長岡天神駅 徒歩18分
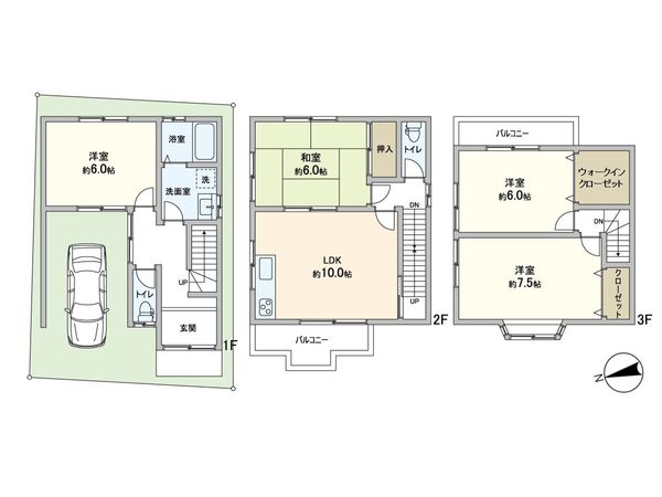
5LDK
建物面積:101.02㎡
土地面積:109.5㎡
新築
条件を変更する
エリア
京都府 乙訓郡大山崎町
変更する
物件の種別
一戸建て
変更する
こだわり条件
NEW
7日以内に新着物件が1件公開されました。
新着情報をメールで受け取りたい方は
NEW
中古戸建



1,350万円
乙訓郡大山崎町字下植野小字寺門 / 阪急京都線 西山天王山駅 徒歩18分 大山崎インターから約1km
4LDK / 建物98.37㎡ / 土地51.09㎡ / 1999年04月築
マンションライブラリー
全国で分譲されたマンションをご紹介
全国で分譲された7万棟超のマンションを
エリアごとにご紹介します。売り出し中・
貸し出し中の物件情報も掲載しております。
豊富な取引実績をもとにご所有不動産の推定成約価格※を即時にAIで査定します。
※当社保有データから機械的に算出した参考価格です

