大阪市中央区安土町2丁目
大阪メトロ中央線 堺筋本町駅 徒歩3分
3LDK / 84.36㎡
2022年03月築
19,800万円



| 物件種別 | 中古マンション |
| 所在地 | GoogleMaps |
| 交通 | |
| 間取り | 3LDK |
| 専有面積 | 90.02㎡(約27.23坪) |
| 築年月 | 2021年01月築 |
| 階数 / 階建 | 26階 / 地上37階建 |
| 向き | 南 |
予約制内覧会を開催します!
| 開催日 | 5月9日(土)11:00 ~ 17:00 5月10日(日)11:00 ~ 17:00 5月16日(土)11:00 ~ 17:00 5月17日(日)11:00 ~ 17:00 5月23日(土)11:00 ~ 17:00 |
|---|
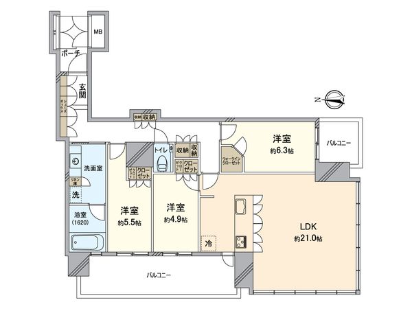
◇三井リハウス購入エージェント対応物件◇ ■立地 大阪メトロ堺筋線-中央線 『堺筋本町駅』 徒歩1分 大阪メトロ御堂筋線-四つ橋線-中央線 『本町駅』 徒歩9分 ■特徴 ・2021年1月築、免震構造タワーマンション ・「堺筋本町」駅直結 ・地上37階建て、26階部分、南西角部屋 ・専有面積90.02平米、3LDKの間取り ・LDK約21.0帖、廊下に収納2箇所あります ・各階にゴミステーションあり便利 ■共用施設(一部有償) ♦1階 コンシェルジュカウンター エントランスホール ウェイティングルーム ザ・オーナーズラウンジ ♦15階 ゲストルーム(和・洋) ♦29階 スカイラウンジ
| 所在地 | GoogleMaps |
| 価格 | 19,800万円 |
| 交通 | |
| 管理費等 | 25,340円 |
| 修繕積立金 | 12,600円 |
| その他費用 | - |
| 間取り | 3LDK |
| 専有面積 | 90.02㎡(約27.23坪) |
| 築年月 | 2021年01月築 |
| 階数 / 階建 | 26階 / 地上37階建 |
| 向き | 南 |
| バルコニー | 17.54㎡ |
| 現況 | 居住中 |
| 駐車場 | - |
| 建物構造 | 鉄筋コンクリート造 |
| 総戸数 | 296戸 |
| 管理会社 | JR九州ビルマネジメント(株) |
| 管理形態 | 管理会社に全部委託 |
| 管理員の 勤務形態 | 常勤 |
| 土地権利 | 所有権 |
| 分譲会社 | 九州旅客鉄道(株) (新築分譲時における売主) |
| 施工会社 | 西松建設(株) |
| 設計会社 | (株)INA新建築研究所 |
| 備考 | ◇購入エージェントグループとは◇ 三井のリハウスの購入専門チームになります。 「購入」に特化した買い手目線の提案交渉で安心と納得の購入をサポートします。 ぜひお気軽に私達にご相談して下さい。 |
| 引渡時期 | 相談 |
| 取引態様 | 仲介 |
| 更新日 | 2026年04月27日 |
| 次回更新予定 | 2026年05月11日 |
| 物件番号 | F1GBTADB |
最新のAI技術を活用した相談サービスです。
お客様一人ひとりのニーズに合わせて最適な情報をご提供します。
リハウスAIチャットの詳しい説明はこちら
三井不動産リアルティ株式会社
国土交通大臣(15)第777号
0120-3815-31
0120-3815-31
物件の売却をご検討の方は、 はやめの査定依頼がおすすめです!
買い替えをご検討の方はこちら0120-3815-31

