松戸市松戸
常磐線 松戸駅 徒歩20分
3LDK / 63.63㎡
1995年10月築
1,480万円



| 物件種別 | 中古マンション |
| 所在地 | GoogleMaps |
| 交通 | 北総鉄道 秋山駅 徒歩5分 |
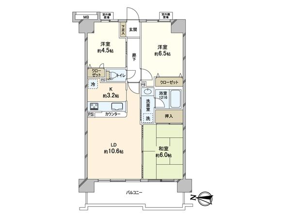
| 間取り | 3LDK |
| 専有面積 | 64.62㎡(約19.54坪) |
| 築年月 | 1997年06月築 |
| 階数 / 階建 | 5階 / 地上7階建 |
| 向き | 西 |
返済計画を入力すると毎月のお支払い目安を表示できます
-物件のおすすめポイント- ▼立地 ・北総鉄道「秋山」駅 徒歩5分 ▼物件の特徴 ・平成9年6月築 ・専有面積64.62平米の3LDK ・7階建て5階部分 ・全居室収納あり ・家族との会話が弾む対面式キッチン ・オートロック付きエントランス ▼周辺環境 ・ベルク松戸秋山店 約520m 徒歩7分 ・セブンイレブン松戸東部小学校前店 約400m 徒歩5分 ・シャルムクリニック 約290m 徒歩4分 ・松戸市立東部小学校 約590m 徒歩8分 ・松戸市立第五中学校 約1070m 徒歩14分 ・とんぼ公園 約140m 徒歩2分 ■ ご希望の住まい探しをお手伝いします ━━━━━・・・ 物件の詳細・ご相談はお気軽にお問い合わせください。
| 所在地 | GoogleMaps |
| 価格 | 1,480万円 |
| 交通 | 北総鉄道 秋山駅 徒歩5分 |
| 管理費等 | 8,900円 |
| 修繕積立金 | 11,570円 |
| その他費用 | 浄化槽清掃費 1,700円 / 月 |
| 間取り | 3LDK |
| 専有面積 | 64.62㎡(約19.54坪) |
| 築年月 | 1997年06月築 |
| 階数 / 階建 | 5階 / 地上7階建 |
| 向き | 西 |
| バルコニー | 10.6㎡ |
| 現況 | 空家 |
| 駐車場 | 敷地内有 (賃貸) 空き:2台有り 月額 8,500円〜9,500円 (確認日:西暦2025年11月13日現在) |
| 建物構造 | 鉄筋コンクリート造 |
| 総戸数 | 65戸 |
| 管理会社 | 朝日管理株式会社 |
| 管理形態 | 管理会社に全部委託 |
| 管理員の 勤務形態 | 日勤 |
| 土地権利 | 所有権 |
| 分譲会社 | 朝日建物(株) (新築分譲時における売主) |
| 施工会社 | (株)森本組 |
| 設計会社 | (株)安宅設計 |
| 備考 | - |
| 引渡時期 | 相談 |
| 取引態様 | 仲介 |
| 更新日 | 2025年11月16日 |
| 次回更新予定 | 2025年11月30日 |
| 物件番号 | F74AUA06 |
最新のAI技術を活用した相談サービスです。
お客様一人ひとりのニーズに合わせて最適な情報をご提供します。
GoogleMaps
| スーパー | ベルク松戸秋山店 約520m(徒歩7分) |
| 小学校 | 松戸市立東部小学校 約590m(徒歩8分) |
| 中学校 | 松戸市立第五中学校 約1070m(徒歩14分) |
0120-996-231
リノベーション工事の可能範囲については、本物件の管理組合規約等により一定の制限が加わる場合がございます。詳細については、工事内容の確定後に判明する部分もありますので、この点については事前にお含みおきください。
リノベーションに関するお問い合わせ0120-996-231
物件の売却をご検討の方は、 はやめの査定依頼がおすすめです!
買い替えをご検討の方はこちら0120-996-231
