ラミーユ松戸ハイライズ2号棟 ヴィラージュ棟
3,290万円



| 物件種別 | 中古マンション |
| 所在地 | GoogleMaps |
| 交通 | 千代田・常磐緩行線 北小金駅 徒歩12分 |
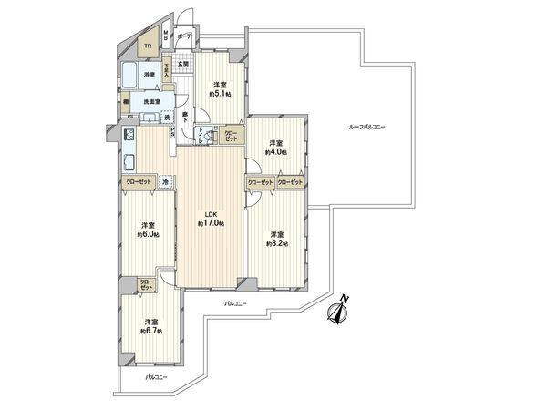
| 間取り | 5LDK |
| 専有面積 | 98.53㎡(約29.8坪) |
| 築年月 | 1987年01月築 |
| 階数 / 階建 | 4階 / 地上6階建 |
| 向き | 南東 |
この物件情報を共有する
毎月のお支払い目安
返済計画を入力すると毎月のお支払い目安を表示できます
- ローン92,872円
- 管理費+修繕積立金34,890円
- その他費用700円
おすすめポイント
■おすすめポイント━━━━━━━━━━━━━━━・・・・・ 〇 千代田・常磐緩行線「北小金」駅 徒歩12分 〇 専有面積:98.53平米の5LDK 〇 6階建て4階部分南東・北東角住戸 〇 49.40平米の広々としたルーフバルコニー有 〇 各居室収納あり 〇 来客時に安心なTVモニター付インターホン 〇 物件周辺は商業施設が充実していて日常生活に便利です ■リフォーム内容(令和7年11月完成予定) ━━━━━━━━━━━━━━━・・・・・ ○ システムキッチン交換 ○ ユニットバス交換 ○ 洗面化粧台交換 ○ トイレ交換 ○ 建具交換 ○ 全室クロス張替 ○ 床材張替 ○ ハウスクリーニング ■周辺施設━━━━━━━━━━━━━━━・・・・・ 〇 コモディイイダ北小金店 約680m 〇 ローソン松戸久保平賀店 約40m 〇 クリエイトS・D松戸小金きよしヶ丘店 約480m 〇 小金郵便局 約430m 〇 山本病院 約580m 〇 つぐみ公園 約30m 〇 松戸市立根木内小学校 約980m 〇 松戸市立根木内中学校 約660m
リノベーション&リフォーム情報(予定含む)
全室クロス/壁紙貼り替え | 台所(キッチン)交換 |
バスルーム交換 | トイレ交換 |
洗面化粧台交換 | 床貼り替え |
扉交換 |
水回り(キッチン、浴室、トイレ、洗面所)(2025年11月)
内装(全室クロス、床、建具)(2025年11月)
物件情報
| 所在地 | GoogleMaps |
| 価格 | 3,290万円 |
| 交通 | 千代田・常磐緩行線 北小金駅 徒歩12分 |
| 管理費等 | 15,180円 |
| 修繕積立金 | 19,710円 |
| その他費用 | ルーフバルコニー使用料 700円 / 月 |
| 間取り | 5LDK |
| 専有面積 | 98.53㎡(約29.8坪) |
| 築年月 | 1987年01月築 |
| 階数 / 階建 | 4階 / 地上6階建 |
| 向き | 南東 |
| バルコニー | 18.18㎡ |
| ルーフバルコニー | 49.4㎡ |
| 現況 | 空家 |
| 駐車場 | 空き無 |
| 建物構造 | 鉄筋コンクリート造 |
| 総戸数 | 89戸 |
| 管理会社 | (株)日鉄コミュニティ |
| 管理形態 | 管理会社に全部委託 |
| 管理員の 勤務形態 | 日勤 |
| 土地権利 | 所有権 |
| 分譲会社 | 興和不動産(株) (新築分譲時における売主) |
| 施工会社 | (株)長谷川工務店 |
| 設計会社 | (株)長谷川工務店 |
| 備考 | 小学校・中学校までの距離は通学路ではございません。 |
| 引渡時期 | 2025年11月中旬以降 |
| 取引態様 | 仲介 |
| 更新日 | 2025年10月30日 |
| 次回更新予定 | 2025年11月13日 |
| 物件番号 | F77AGB23 |
周辺情報
GoogleMaps
| スーパー | コモディイイダ北小金店 約680m(徒歩9分) |
| 公園 | つぐみ公園 約30m(徒歩1分) |
| 病院 | 山本病院 約580m(徒歩8分) |
| 小学校 | 松戸市立根木内小学校 約980m(徒歩13分) |
| 中学校 | 松戸市立根木内中学校 約660m(徒歩9分) |
| その他利便施設1 | ローソン松戸久保平賀店 約40m(徒歩1分) |
| その他利便施設2 | クリエイトS・D松戸小金きよしヶ丘店 約480m(徒歩6分) |
| その他利便施設3 | 小金郵便局 約430m(徒歩6分) |
取扱店舗
三井のリハウス 新松戸センター
- 営業時間10:00~18:00
- 定休日毎週火曜日・水曜日
0120-984-331
あなたへのおすすめ
松戸市の物件情報
この物件のリノベーションに関する問い合わせはこちらから。
リノベーション工事の可能範囲については、本物件の管理組合規約等により一定の制限が加わる場合がございます。詳細については、工事内容の確定後に判明する部分もありますので、この点については事前にお含みおきください。
リノベーションに関するお問い合わせこの物件を見学してみませんか?
この物件についてお問い合わせ
物件・住環境の詳しい情報、購入・ローン相談など、ささいなことでもお気軽にお問い合わせください。三井のリハウス 新松戸センター
- 営業時間10:00~18:00
- 定休日毎週火曜日・水曜日
0120-984-331

物件の売却をご検討の方は、 はやめの査定依頼がおすすめです!
買い替えをご検討の方はこちら見学予約
お問い合わせ
0120-984-331
- 営業時間 10:00~18:00
- 定休日 毎週火曜日・水曜日









