中央区晴海5丁目
都営大江戸線 勝どき駅 徒歩14分
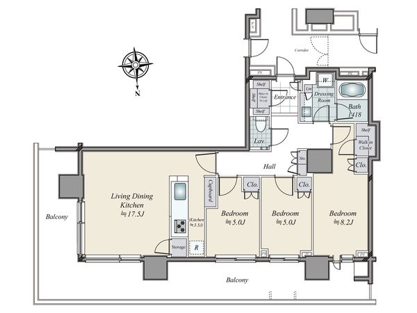
3LDK / 77.85㎡
築1年未満
25,800万円



| 物件種別 | 中古マンション |
| 所在地 | GoogleMaps |
| 交通 | |
| 間取り | 3LDK |
| 専有面積 | 82.74㎡(約25.02坪) |
| 築年月 | 2025年08月築 |
| 階数 / 階建 | 41階 / 地上50階 地下1階建 |
| 向き | 東 |
返済計画を入力すると毎月のお支払い目安を表示できます
-物件のおすすめポイント- ▼お部屋の特徴 ・専有面積82.74平米、3LDK+WIC+SICの間取り ・41階部分角住戸につき、眺望・通風良好 ・最大奥行約2,000mm、約39.40平米のL字型バルコニー ・全居室バルコニーに面した間取り ・二面採光のLDK ・全居室収納有 ・最大天井高2,600mm(LD・洋室約8.2帖) ▼設備 ・床暖房(LD) ・食洗機 ・ディスポーザー ・浄水器一体型シャワー水栓 ・浴室暖房乾燥機(ミストサウナ付) ・フルオートバス ・温水式洗浄暖房便座 ・ウォークインクローゼット ・シューズインクローゼット ▼マンションの特徴 ・三井不動産レジデンシャル株式会社 他 分譲 ・三井住友建設株式会社 施工 ・総戸数 722 戸 ・充実の共用施設 ・共用廊下はホテルライクな内廊下設計 ・各階ゴミステーション有 (24時間ゴミ出し可) ・住空間のメンテナンス性を高める二重床・二重天井構造 ・窓には断熱性に配慮したLow‐E複層ガラス採用 ・断熱性能と環境性能に配慮したノンフロン断熱材採用 ・ペット飼育可(細則有) ・PARK VILLAGE『晴海ふ頭公園』隣接 ▼HARUMI FLAG全体で51カ所の共用施設(※一部有償) ・パーティールーム (A棟1階、F棟1階、T棟2階) ・リラックスラボ(B棟1階) ・ゲストルーム (B棟1階、C棟2階、F棟1階、T棟48階) ・ライブラリーラウンジ(B棟1・2階) ・フラッグコア(C棟1階) ・キッズスペース(C棟1階、T棟2階) ・足湯ラウンジ(D棟1階) ・ワークスペース(E棟1階) ・シアタールーム(F棟B1階) ・ソラテラス(F棟14階) ・ビューラウンジ(F棟14階) ・バーラウンジ(T棟48階) 他 SUN VILLAGE・SEA VILLAGE共用施設の一部相互利用可 ■ ご希望の住まい探しをお手伝いします ━━━━━・・・ 物件の詳細・ご相談はお気軽にお問い合わせください。
| 所在地 | GoogleMaps |
| 価格 | 25,800万円 |
| 交通 | |
| 管理費等 | 32,520円 |
| 修繕積立金 | 15,800円 |
| その他費用 | インターネット利用料 2,750円 / 月、自治会費 100円 / 月、HARUMI FLAG CLUB会費 500円 / 月 |
| 間取り | 3LDK |
| 専有面積 | 82.74㎡(約25.02坪) |
| 築年月 | 2025年08月築 |
| 階数 / 階建 | 41階 / 地上50階 地下1階建 |
| 向き | 東 |
| バルコニー | 39.4㎡ |
| 現況 | 空家 |
| 駐車場 | 空き無 |
| 建物構造 | 鉄筋コンクリート造 |
| 総戸数 | 722戸 |
| 管理会社 | 三井不動産レジデンシャルサービス(株) |
| 管理形態 | 管理会社に全部委託 |
| 管理員の 勤務形態 | 日勤 |
| 土地権利 | 所有権 |
| 分譲会社 | 三井不動産レジデンシャル(株)、三菱地所レジデンス(株)他 (新築分譲時における売主) |
| 施工会社 | 三井住友建設(株) |
| 設計会社 | (株)日建ハウジングシステム、三井住友建設(株) |
| 備考 | - |
| 引渡時期 | 相談 |
| 取引態様 | 仲介 |
| 更新日 | 2026年02月16日 |
| 次回更新予定 | 2026年03月02日 |
| 物件番号 | FBHBBA07 |
最新のAI技術を活用した相談サービスです。
お客様一人ひとりのニーズに合わせて最適な情報をご提供します。
リハウスAIチャットの詳しい説明はこちら
GoogleMaps
| 公園 | 晴海ふ頭公園 約250m(徒歩4分) |
| 小学校 | 中央区立晴海西小学校 約80m(徒歩1分) |
| その他利便施設1 | 三井ショッピングパークららテラスHARUMI FLAG 約160m(徒歩2分) |
三井不動産リアルティ株式会社
国土交通大臣(15)第777号
0120-377-431
0120-377-431
物件の売却をご検討の方は、 はやめの査定依頼がおすすめです!
買い替えをご検討の方はこちら0120-377-431

