札幌市中央区南七条西1丁目
札幌市営東豊線 豊水すすきの駅 徒歩4分
4LDK / 110.91㎡
2006年02月築
4,490万円



| 物件種別 | 中古マンション |
| 所在地 | GoogleMaps |
| 交通 | |
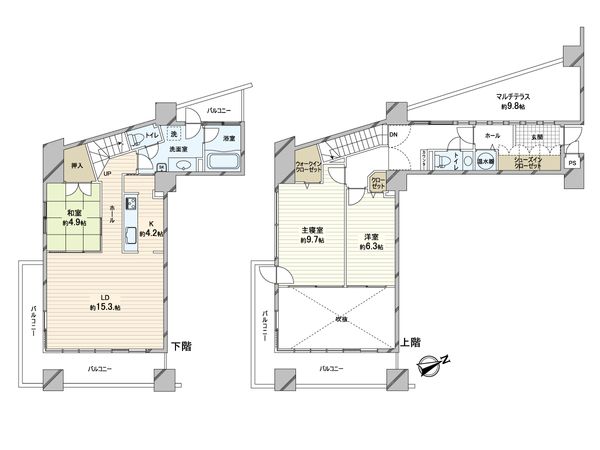
| 間取り | 3LDK |
| 専有面積 | 116.66㎡(約35.28坪) |
| 築年月 | 2006年02月築 |
| 階数 / 階建 | 8階 / 地上14階 地下1階建 |
| 向き | 南東 |
-物件のおすすめポイント- ▼立地 ○地下鉄東豊線「豊水すすきの」駅 徒歩4分 ○地下鉄南北線「中島公園」駅 徒歩9分 ▼マンションの特徴 ○オール電化 ○ペット飼育可能(細則あり) ○14階には落ち着いた時間を過ごせる「スターラウンジ」 ○暮らしの安全を守るオートロックシステム ○宅配ボックスあり ○24時間いつでもゴミ処理可能 ▼お部屋の特徴 ○戸建感覚で利用できるメゾネットタイプ(7階・8階) ○専有面積116.66平米のゆとりある3LDK ○南・西・東向き3方角住戸のため日照・通風良好 ○豊平川を望む眺望 〇マルチテラスからはテレビ塔が望めます ○全居室・玄関・廊下部分、納戸等収納豊富 ▼設備 ○カラーモニター付きインターホン ○ダブルロック玄関ドア ○IHクッキングヒーター ○食器洗浄乾燥機 ○三面鏡つき洗面化粧台 ○手洗いカウンター付きトイレ ○浴室乾燥機 ■ ご希望の住まい探しをお手伝いします ━━━━━・・・ 物件の詳細・ご相談はお気軽にお問い合わせください。
| 所在地 | GoogleMaps |
| 価格 | 4,490万円 |
| 交通 | |
| 管理費等 | 16,900円 |
| 修繕積立金 | 21,900円 |
| その他費用 | - |
| 間取り | 3LDK |
| 専有面積 | 116.66㎡(約35.28坪) |
| 築年月 | 2006年02月築 |
| 階数 / 階建 | 8階 / 地上14階 地下1階建 |
| 向き | 南東 |
| バルコニー | 63.68㎡ |
| 現況 | 居住中 |
| 駐車場 | 敷地内有 (所有権) 空き:1台有り 月額 2,400円 (確認日:西暦2026年01月16日現在) |
| 建物構造 | 鉄筋コンクリート造 |
| 総戸数 | 68戸 |
| 管理会社 | 日本ハウズイング(株) |
| 管理形態 | 管理会社に全部委託 |
| 管理員の 勤務形態 | 日勤 |
| 土地権利 | 所有権 |
| 分譲会社 | 大岡産業(株) (新築分譲時における売主) |
| 施工会社 | 青木あすなろ建設(株) |
| 設計会社 | (有)エー・トランスデザインワークス |
| 備考 | - |
| 引渡時期 | 相談 |
| 取引態様 | 仲介 |
| 更新日 | 2026年04月18日 |
| 次回更新予定 | 2026年05月02日 |
| 物件番号 | FC1BAA0C |
最新のAI技術を活用した相談サービスです。
お客様一人ひとりのニーズに合わせて最適な情報をご提供します。
リハウスAIチャットの詳しい説明はこちら
GoogleMaps
| スーパー | まいばすけっと南8条西4丁目店 約660m(徒歩9分) |
| スーパー | 業務スーパーすすきの狸小路店 約880m(徒歩11分) |
| 公園 | 中島公園 約700m(徒歩9分) |
| 病院 | リバーサイド内科循環器科クリニック 約280m(徒歩4分) |
| 小学校 | 資生館小学校 約1370m(徒歩18分) |
| 中学校 | 中島中学校 約1650m(徒歩21分) |
| その他利便施設1 | サンドラッグ狸小路2丁目店 約850m(徒歩11分) |
| その他利便施設2 | ツルハドラッグ南8条店 約1150m(徒歩15分) |
| その他利便施設3 | ローソン札幌南7条西一丁目店 約180m(徒歩3分) |
| その他利便施設4 | 札幌南八条郵便局 約640m(徒歩8分) |
三井不動産リアルティ札幌株式会社
北海道知事石狩(8)第5813号
0120-312-440
リノベーション工事の可能範囲については、本物件の管理組合規約等により一定の制限が加わる場合がございます。詳細については、工事内容の確定後に判明する部分もありますので、この点については事前にお含みおきください。
リノベーションに関するお問い合わせ0120-312-440
物件の売却をご検討の方は、 はやめの査定依頼がおすすめです!
買い替えをご検討の方はこちら0120-312-440

