豊島区南池袋1丁目
西武池袋・豊島線 池袋駅 徒歩5分
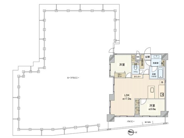
2LDK / 58.52㎡
2025年02月築
13,700万円



| 物件種別 | 中古マンション |
| 所在地 | GoogleMaps |
| 交通 | |
| 間取り | 2LDK |
| 専有面積 | 60.62㎡(約18.33坪) |
| 築年月 | 2013年09月築 |
| 階数 / 階建 | 8階 / 地上9階建 |
| 向き | 南 |
【南向き×角部屋×170平米超ルーフバルコニー】 眺望と開放感を兼ね備えた邸宅 -物件のおすすめポイント- ▼立地 ・東京メトロ有楽町線「東池袋」駅 徒歩4分 ・JR山手線・埼京線・湘南新宿ライン /東京メトロ有楽町線・副都心線・丸ノ内線 /東武東上線/西武池袋線「池袋」駅39番出口 徒歩9分 ・都電荒川線「都電雑司ヶ谷」駅 徒歩1分 ▼リフォーム履歴(2021年10月) ・キッチン、洗面化粧台、トイレ 新規交換 ・浴室ドア交換 ・フローリング上貼り ・クロス張替 等 ▼お部屋の特徴 ・南向き角部屋につき日当たり・通風良好 ・全居室採光設計 ・約174平米の開放感あふれるルーフバルコニー ・ルーフバルコニーにはスロップシンク付き ・1618サイズの浴室 ▼マンションの特徴 ・不在時に便利な宅配ボックス ・コンシェルジュサービス ・24時間セキュリティシステム ・オートロックシステム ・テレビモニター付きインターホン ・宅配ボックス ・ペット飼育可(※規約あり)
| 所在地 | GoogleMaps |
| 価格 | 13,700万円 |
| 交通 | |
| 管理費等 | 16,300円 |
| 修繕積立金 | 14,300円 |
| その他費用 | ルーフバルコニー使用料 2,600円 / 月 |
| 間取り | 2LDK |
| 専有面積 | 60.62㎡(約18.33坪) |
| 築年月 | 2013年09月築 |
| 階数 / 階建 | 8階 / 地上9階建 |
| 向き | 南 |
| バルコニー | 10.37㎡ |
| ルーフバルコニー | 174.53㎡ |
| 現況 | 空家 |
| 駐車場 | 空き無 |
| 建物構造 | 鉄筋コンクリート造 |
| 総戸数 | 67戸 |
| 管理会社 | (株)エステム管理サービス |
| 管理形態 | 管理会社に全部委託 |
| 管理員の 勤務形態 | 日勤 |
| 土地権利 | 所有権 |
| 分譲会社 | (株)東京日商エステム (新築分譲時における売主) |
| 施工会社 | (株)鍜治田工務店 |
| 設計会社 | (株)秀研設計 |
| 備考 | - |
| 引渡時期 | 相談 |
| 取引態様 | 仲介 |
| 更新日 | 2026年04月16日 |
| 次回更新予定 | 2026年04月30日 |
| 物件番号 | FP8BDA15 |
最新のAI技術を活用した相談サービスです。
お客様一人ひとりのニーズに合わせて最適な情報をご提供します。
リハウスAIチャットの詳しい説明はこちら
GoogleMaps
| スーパー | マルエツプチ東池袋駅前店 約410m(徒歩6分) |
| スーパー | まいばすけっと南池袋2丁目店 約440m(徒歩6分) |
| 公園 | 雑司が谷公園 約550m(徒歩7分) |
| 病院 | あずま通りクリニック 約240m(徒歩3分) |
| その他利便施設1 | ミニストップ南池袋2丁目店 約20m(徒歩1分) |
| その他利便施設2 | ファミリーマートとしまエコミューゼタウン店 約180m(徒歩3分) |
| その他利便施設3 | そうごう薬局東池袋店 約180m(徒歩3分) |
| その他利便施設4 | 豊島区役所前郵便局 約340m(徒歩5分) |
| その他利便施設5 | 豊島区役 約180m(徒歩3分) |
三井不動産リアルティ株式会社
国土交通大臣(15)第777号
0120-313-720
0120-313-720
物件の売却をご検討の方は、 はやめの査定依頼がおすすめです!
買い替えをご検討の方はこちら0120-313-720

