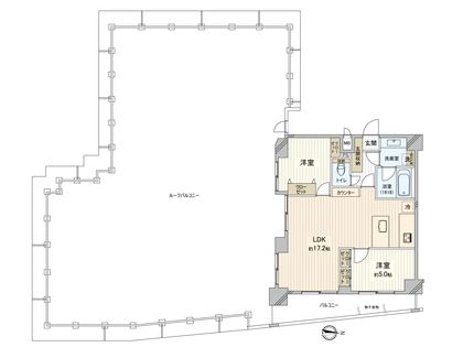
2LDK / 60.62㎡ / 8階
エステムプラザ池袋ザ・ヴィンテージ
「エステムプラザ池袋ザ・ヴィンテージ」は、山手線池袋駅に近接しており、日々の通勤や通学、さらには週末のお出かけにも便利な立地に位置しています。池袋は、東京都内でも有数の繁華なエリアであり、様々なショッピング施設や飲食店、エンターテイメント施設が集積しています。生活に便利な施設が身近に揃っているため、忙しい日々の中でも充実した時間を過ごすことができます。 この物件は、都心での生活を望む方々にとって魅力的な選択肢の一つとなるでしょう。山手線を利用すれば、東京都内の様々なエリアへのアクセスが容易であり、都会の利便性を享受しながらも、落ち着いた住環境を求める方にも適しています。都心での生活を満喫したい方にとって、この物件は新たな生活のスタートをサポートすることでしょう。





基本情報
| 所在地 | 東京都豊島区南池袋3丁目 GoogleMaps |
| 交通 | |
| 総戸数 | 67戸 |
| 分譲会社 | 東京日商エステム |
| 周辺施設 | - |
| 築年月 | 2013年09月 築 |
| 階建 | 9階建 |
| 建物構造 | 鉄筋コンクリート造 |
| 施工会社 | 鍜治田工務店 |
交通情報の変化や、分譲会社の社名変更等により、現況(販売中物件)と異なる場合があります。
池袋駅の「住みやすさ」概要
担当店舗
※募集期間:2025/2/1 ~ 2025/3/31
※回答人数:27,509名
※対象者:三井のリハウスで不動産売買を経験された方
三井のリハウスの無料査定
お客様一人一人の物件に合わせて、
不動産取引に精通したプロが売り出し価格・募集賃料をご提案いたします。
不動産無料査定をお考えの方
お客様からいただいた物件情報と周辺事例や成約取引事例等に基づき、価格をご提示いたします。
無料査定依頼参考相場価格
エステムプラザ池袋ザ・ヴィンテージ
万円~
万円
物件の広さを選択してください
※物件の広さを選択いただくと、面積ごとの参考相場価格が確認できます。選択可能な面積は、実際のマンションの面積帯とは異なりますので、ご注意ください。
エステムプラザ池袋ザ・ヴィンテージ 周辺相場・購入検討者情報
豊島区周辺での周辺相場(売り出し中物件情報)
「専有面積×価格」などの件数分布表で相場を把握いただけます。
豊島区の中古マンション購入情報をチェック購入検討者情報
三井のリハウスにご依頼いただいている方のうち、豊島区周辺のマンション購入検討者数をご希望価格帯別にご紹介します。
豊島区周辺での購入検討者
1,459人
豊島区周辺におけるマンションの購入検討者数をご希望価格帯別に表示しています。
取引実績
過去10年の取引実績件数を一覧で表示します
豊島区周辺での取引実績
総取引件数
2,123件
マンション
1,391件
一戸建て・土地
732件
アイコンについて
近隣のマンションを探す
豊島区の物件情報
近くのエリアから探す
他の駅から探す
山手線
東京メトロ有楽町線
都電荒川線
よくあるご質問
物件が売り出されたら、
メールでお知らせします!
こちらのマンションで別の間取りや別の階などの新しい物件が売り出されたら、いち早くメールでご連絡いたします。
この物件が出たら教えて!不動産無料査定
お客様一人一人の物件に合わせて、不動産取引に精通したプロが売り出し価格・募集賃料をご提案いたします。
無料査定依頼店舗へ問い合わせる
売り出し中物件が見つからない場合、異なる条件の物件をご希望の場合など、お気軽にお問い合わせください。
担当店舗へ問い合わせる







