新宿区四谷4丁目
東京メトロ丸ノ内線 新宿御苑前駅 徒歩4分
3LDK / 74.55㎡
2024年10月築
29,000万円



| 物件種別 | 中古マンション |
| 所在地 | GoogleMaps |
| 交通 | |
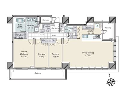
| 間取り | 2LDK |
| 専有面積 | 74.92㎡(約22.66坪) |
| 築年月 | 2024年10月築 |
| 階数 / 階建 | 17階 / 地上35階 地下1階建 |
| 向き | 西 |
クラッシィタワー新宿御苑 ~17階部分/2LDK・74.92平米~ ■ おすすめポイント ・・・・・・・・・・・ 〇 LDのダイレクトウィンドウより新宿御苑の広大な緑や 新宿副都心を臨む(季節・天候による) 〇 廊下の少ない効率的な間取 〇 収納豊富な間取 〇 令和6年10月竣工 〇 35階建て17階部分 〇 LDには温水式床暖房 〇 リビングダイニング天井高約2,600mm 〇 キッチンにはディスポーザー・浄水器・食洗器有 ■リフォーム内容(令和7年10月下旬完成) ・壁面・天井意匠造作 ・照明追加 ・収納造作 ・カップボード新設 ・埋め込み式電気暖炉新設 ・姿見新設 ・クリーニング ■ 共用部分 ・・・・・・・・・・・・・ 〇 各階にゴミ置き場有 〇 24時間オンラインセキュリティシステムによる警備体制 〇 3次セキュリティシステム (風除室~エレベーターホール~各住戸玄関扉)
| 所在地 | GoogleMaps |
| 価格 | 29,000万円 |
| 交通 | |
| 管理費等 | 38,060円 |
| 修繕積立金 | 10,500円 |
| その他費用 | - |
| 間取り | 2LDK |
| 専有面積 | 74.92㎡(約22.66坪) |
| 築年月 | 2024年10月築 |
| 階数 / 階建 | 17階 / 地上35階 地下1階建 |
| 向き | 西 |
| バルコニー | 6.5㎡ |
| 現況 | 空家 |
| 駐車場 | - |
| 建物構造 | 鉄筋コンクリート造 |
| 総戸数 | 280戸 |
| 管理会社 | 住商建物(株) |
| 管理形態 | 管理会社に全部委託 |
| 管理員の 勤務形態 | 日勤 |
| 土地権利 | 所有権 |
| 分譲会社 | 住友商事(株)、三菱地所レジデンス(株) (新築分譲時における売主) |
| 施工会社 | 鹿島建設(株) |
| 設計会社 | 鹿島建設(株) |
| 備考 | - |
| 引渡時期 | 相談 |
| 取引態様 | 仲介 |
| 更新日 | 2026年04月30日 |
| 次回更新予定 | 2026年05月14日 |
| 物件番号 | FWRAUA02 |
最新のAI技術を活用した相談サービスです。
お客様一人ひとりのニーズに合わせて最適な情報をご提供します。
リハウスAIチャットの詳しい説明はこちら
0120-494-321
0120-494-321
物件の売却をご検討の方は、 はやめの査定依頼がおすすめです!
買い替えをご検討の方はこちら0120-494-321

