世田谷区代沢3丁目
小田急電鉄小田原線 下北沢駅 徒歩13分
2SLDK
建物面積:146.82㎡
土地面積:99.59㎡
新築
16,780万円



| 物件種別 | 新築戸建 |
| 所在地 | GoogleMaps |
| 交通 | |
| 間取り | 3LDK |
| 建物面積 | 141.46㎡(約42.79坪) |
| 土地面積 | 102.86㎡(約31.11坪) ※セットバック約0.35㎡を含む ※別途私道約19.24㎡有 |
| 築年月 | 2025年10月築 |
返済計画を入力すると毎月のお支払い目安を表示できます
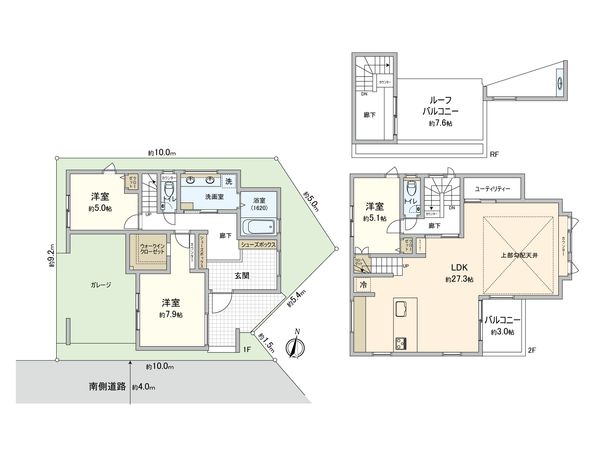
【交通】 ●東急世田谷線「松原」駅徒歩5分 ●京王線「下高井戸」駅徒歩12分 【特徴】 ●建物約141平米(車庫面積16.46平米含む)の3LDK ●約7.6帖のルーフバルコニー ●リビングは勾配天井 ●洗面ツーボールで朝の混雑を軽減 ●ウォークインクローゼット ●LIXIL「ライフアシスト2」導入のIoT住宅 (スマホや音声で自宅の機器を操作) ●非常用貯水タンク完備 ●ZEH基準(省エネルギー住宅) ●耐震等級3 ●床暖房 ●ディスポーザー ●人造大理石天板キッチン ●タッチレス水栓 ●液晶TV付バスルーム ●浴室換気乾燥機 ●防犯カメラ2台 ●宅配ボックス ●玄関システムキー ●EV・PHEV充電用屋外コンセント 【周辺施設】 ●区立松沢小学校 約670m ●区立松沢中学校 約740m ●オオゼキ松原店 約400m ●まいばすけっと松原駅前店 約370m ●ココカラファイン松原店 約420m ●セブンイレブン世田谷松原駅前店 約370m ●区立赤松公園 約300m
| 所在地 | GoogleMaps |
| 価格 | 16,780万円 |
| 交通 | |
| その他費用 | - |
| 間取り | 3LDK |
| 建物面積 | 141.46㎡(約42.79坪) |
| 土地面積 | 102.86㎡(約31.11坪) ※セットバック約0.35㎡を含む ※別途私道約19.24㎡有 |
| 築年月 | 2025年10月築 |
| 建物構造 | 木造2階建 |
| 現況 | 空家 |
| 駐車場 | 有 |
| 土地権利 | 所有権 |
| 地目 | 宅地 |
| 接道状況 | 南側: 約 4m (私道) |
| 建ぺい率 | 60% |
| 容積率 | 150% |
| 用途地域 | 第一種低層住居専用地域 |
| 都市計画 | 市街化区域 |
| 備考 | ※車庫面積16.46平米含む |
| 引渡時期 | 2026年02月下旬以降 |
| 取引態様 | 仲介 |
| 更新日 | 2025年12月07日 |
| 次回更新予定 | 2025年12月21日 |
| 物件番号 | F10AGA38 |
最新のAI技術を活用した相談サービスです。
お客様一人ひとりのニーズに合わせて最適な情報をご提供します。
リハウスAIチャットの詳しい説明はこちら
0120-924-031
0120-924-031
物件の売却をご検討の方は、 はやめの査定依頼がおすすめです!
買い替えをご検討の方はこちら0120-924-031

