世田谷区代田2丁目
小田急電鉄小田原線 世田谷代田駅 徒歩6分
1SLDK
建物面積:84.34㎡
土地面積:69.27㎡
新築
15,480万円



| 物件種別 | 新築戸建 |
| 所在地 | GoogleMaps |
| 交通 | |
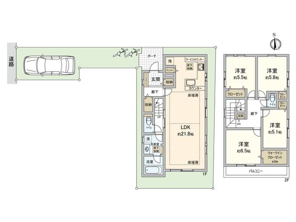
| 間取り | 4LDK |
| 建物面積 | 110.79㎡(約33.51坪) |
| 土地面積 | 114.29㎡(約34.57坪) ※セットバック約0.49㎡を含む |
| 築年月 | 2025年12月築 |
返済計画を入力すると毎月のお支払い目安を表示できます
-物件のおすすめポイント- ▼立地 ・小田急小田原線「世田谷代田」駅徒歩8分 ・小田急小田原線「梅ヶ丘」駅徒歩12分 ・小田急小田原線「下北沢」駅徒歩14分 ・閑静な第一種低層住居専用地域 ▼土地建物の特徴 ・大和ハウス分譲セキュレアシリーズ ・令和7年12月完成の新築戸建 ・土地面積約114.29平米(セットバック面積約0.49平米、協定部分約0.32平米含む) ・延床面積約110.79平米 ・4LDK+WIC ▼お部屋の特徴 ・約20帖超のゆとりあるLDK ・キッチン周りを美しく保つパントリー付き ・広々とした玄関収納あり ・約6.1帖の主寝室にウォークインクローゼット付き ・玄関ホールには階段下物入れあり ・全居室収納あり ・各階にトイレがあり生活動線良好 ・駐車スペースあり(車種による) ▼設備 ・ハイブリッド給湯器 ・ガス温水床暖房(LD部分) ・食器洗浄機 ・浴室暖房換気乾燥機 ・浄水器内蔵ハンドシャワー混合水栓 ▼ご希望の住まい探しをお手伝いします 物件のご相談はお気軽にお問い合わせください。
| 所在地 | GoogleMaps |
| 価格 | 15,480万円 |
| 交通 | |
| その他費用 | - |
| 間取り | 4LDK |
| 建物面積 | 110.79㎡(約33.51坪) |
| 土地面積 | 114.29㎡(約34.57坪) ※セットバック約0.49㎡を含む |
| 築年月 | 2025年12月築 |
| 建物構造 | 鉄骨造2階建 |
| 現況 | 空家 |
| 駐車場 | 有 |
| 土地権利 | 所有権 |
| 地目 | 宅地 |
| 接道状況 | 北側: 約 4m (私道) |
| 建ぺい率 | 50% |
| 容積率 | 150% |
| 用途地域 | 第一種低層住居専用地域 |
| 都市計画 | 市街化区域 |
| 備考 | ※景観計画区域:一般地域(低層住宅系ゾーン)、宅地造成等工事規制区域、緑化地域 |
| 引渡時期 | 2026年02月下旬以降 |
| 取引態様 | 仲介 |
| 更新日 | 2026年01月31日 |
| 次回更新予定 | 2026年02月14日 |
| 物件番号 | F10BGA08 |
最新のAI技術を活用した相談サービスです。
お客様一人ひとりのニーズに合わせて最適な情報をご提供します。
リハウスAIチャットの詳しい説明はこちら
GoogleMaps
| スーパー | 信濃屋代田食品館 約130m(徒歩2分) |
| 小学校 | 世田谷区立代沢小学校 約720m(徒歩9分) |
| その他利便施設1 | セブンイレブン世田谷代田1丁目店 約240m(徒歩3分) |
0120-924-031
0120-924-031
物件の売却をご検討の方は、 はやめの査定依頼がおすすめです!
買い替えをご検討の方はこちら0120-924-031

