杉並区成田東3丁目
東京メトロ丸ノ内線 南阿佐ケ谷駅 徒歩13分
2SLDK
建物面積:91.7㎡
土地面積:91.7㎡
2026年07月築(予定)
9,990万円



| 物件種別 | 新築戸建 |
| 所在地 | GoogleMaps |
| 交通 | 東京メトロ丸ノ内線 南阿佐ケ谷駅 徒歩13分 |
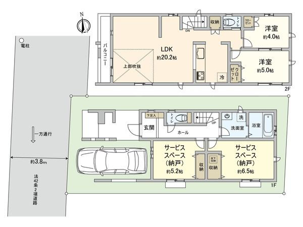
| 間取り | 2SLDK ※S・サービススペースは納戸です |
| 建物面積 | 92.32㎡(約27.92坪) |
| 土地面積 | 91.7㎡(約27.73坪) |
| 築年月 | 2026年07月築(予定) |
予約制内覧会を開催します!
| 開催日 | 4月25日(土)11:00 ~ 17:00 4月26日(日)11:00 ~ 17:00 |
|---|
-物件のおすすめポイントー ▼立地 ・東京メトロ丸ノ内線 「南阿佐ケ谷」駅 徒歩13分 ▼建物の特徴 ・2026年7月中旬完成予定物件 ・建物面積92.32平米(ビルトイン車庫9.93平米含む) ・間取り:2LDK+2S 4部屋ある戸建て ▼お部屋の特徴 ・LDK約20.25帖 ・対面式キッチン ・全居室に収納あり ▼設備・仕様 ・対面式キッチン ・キッチンに食洗機付き ・リビングダイニング部分床暖房 ・車1台駐車可能(車種による) ■ ご希望の住まい探しをお手伝いします ━━━━━ ・・・ 物件の詳細・ご相談はお気軽にお問い合わせください。
| 所在地 | GoogleMaps |
| 価格 | 9,990万円 |
| 交通 | 東京メトロ丸ノ内線 南阿佐ケ谷駅 徒歩13分 |
| その他費用 | - |
| 間取り | 2SLDK ※S・サービススペースは納戸です |
| 建物面積 | 92.32㎡(約27.92坪) |
| 土地面積 | 91.7㎡(約27.73坪) |
| 築年月 | 2026年07月築(予定) |
| 建物構造 | 木造2階建 |
| 現況 | 未完成 |
| 駐車場 | 有 |
| 土地権利 | 所有権 |
| 地目 | 宅地 |
| 接道状況 | 西側: 約 3.8m (公道) |
| 建ぺい率 | 50% |
| 容積率 | 100% |
| 用途地域 | 第一種低層住居専用地域 |
| 都市計画 | 市街化区域 |
| 建築確認番号 | 第HPA-26-03346-1号 |
| 備考 | - |
| 引渡時期 | 相談 |
| 取引態様 | 仲介 |
| 更新日 | 2026年04月24日 |
| 次回更新予定 | 2026年05月08日 |
| 物件番号 | F23BDA25 |
最新のAI技術を活用した相談サービスです。
お客様一人ひとりのニーズに合わせて最適な情報をご提供します。
リハウスAIチャットの詳しい説明はこちら
GoogleMaps
| スーパー | サミットストア成田東店 約250m(徒歩4分) |
| 公園 | 東二公園 約60m(徒歩1分) |
| 公園 | 区立梅里中央公園 約620m(徒歩8分) |
| 小学校 | 東田小学校 約260m(徒歩4分) |
| 中学校 | 東田中学校 約450m(徒歩6分) |
| その他利便施設1 | セブンイレブン杉並成田東1丁目店 約90m(徒歩2分) |
| その他利便施設2 | 区立成田図書館 約260m(徒歩4分) |
0120-133-304
0120-133-304
物件の売却をご検討の方は、 はやめの査定依頼がおすすめです!
買い替えをご検討の方はこちら0120-133-304

