三鷹市牟礼5丁目
京王電鉄井の頭線 三鷹台駅 徒歩19分
3LDK
建物面積:86.27㎡
土地面積:100.64㎡
2026年01月築(予定)
8,698万円



| 物件種別 | 新築戸建 |
| 所在地 | GoogleMaps |
| 交通 | |
| 間取り | 4LDK |
| 建物面積 | 90.05㎡(約27.24坪) |
| 土地面積 | 127.72㎡(約38.63坪) ※別途私道約122㎡有 (共有持分 1/12) |
| 築年月 | 2026年01月築(予定) |
返済計画を入力すると毎月のお支払い目安を表示できます
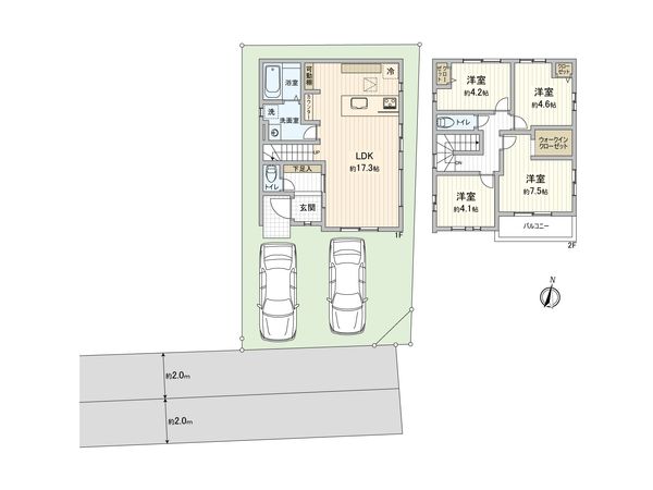
-物件のおすすめポイント- ▼立地 ・京王井の頭線「三鷹台」駅 徒歩19分 ・京王井の頭線「久我山」駅 徒歩22分 ・2駅利用可能で通勤通学に便利 ・「久我山」駅は 急行停車駅 ▼建物・お部屋の特徴 ・広々としたリビング約17.3帖 ・1か所に水まわりを集中させ、生活に配慮した間取り ・駐車スペース2台分有り(車種による) ・建物面積90.05平米の4LDKの間取り ・全居室2面採光のため通風、採光良好 ・コミュニケーションを育むリビング階段 ▼設備 ・リビングダイニングと一体感のある対面式キッチン ・浄水器・食洗機付のシステムキッチン ・雨の日の洗濯にも便利な浴室乾燥暖房機付 ・トイレには快適な温水洗浄便座付 ・ウォークインクローゼット等収納充実 ・来客時に便利なTVモニター付インターホン ▼周辺環境 ・徒歩圏内にスーパーやコンビニがありお買い物に便利
| 所在地 | GoogleMaps |
| 価格 | 8,698万円 |
| 交通 | |
| その他費用 | - |
| 間取り | 4LDK |
| 建物面積 | 90.05㎡(約27.24坪) |
| 土地面積 | 127.72㎡(約38.63坪) ※別途私道約122㎡有 (共有持分 1/12) |
| 築年月 | 2026年01月築(予定) |
| 建物構造 | 木造2階建 |
| 現況 | 未完成 |
| 駐車場 | - |
| 土地権利 | 所有権 |
| 地目 | 宅地 |
| 接道状況 | 西側: 約 4m (私道) |
| 建ぺい率 | 40%・60% |
| 容積率 | 80%・160% |
| 用途地域 | 第一種低層住居専用地域/第一種中高層住居専用地域 |
| 都市計画 | 市街化区域 |
| 建築確認番号 | 第25UDI1W建06633号 |
| 備考 | ・最低敷地面積:100平米(第一種低層住居地域内)/ 90平米(第一種中高層住居専用地域) ・宅地造成等工事規制区域 ・都市計画道路:三鷹3・2・2号線東京八王子線 南側約51m事業中 |
| 引渡時期 | 2026年02月下旬以降 |
| 取引態様 | 仲介 |
| 更新日 | 2026年01月23日 |
| 次回更新予定 | 2026年02月06日 |
| 物件番号 | F24AGAAA |
最新のAI技術を活用した相談サービスです。
お客様一人ひとりのニーズに合わせて最適な情報をご提供します。
リハウスAIチャットの詳しい説明はこちら
GoogleMaps
| スーパー | コープ牟礼店 約220m(徒歩3分) |
| スーパー | 業務スーパー三鷹店 約160m(徒歩2分) |
| 公園 | 牟礼下本宿児童遊園 約220m(徒歩3分) |
| 病院 | 天神前クリニック 約530m(徒歩7分) |
| 小学校 | 三鷹市立北野小学校 約840m(徒歩11分) |
| 中学校 | 三鷹市立第六中学校 約850m(徒歩11分) |
| その他利便施設1 | セブンイレブン三鷹南原店 約100m(徒歩2分) |
| その他利便施設2 | サンドラッグ三鷹牟礼店 約390m(徒歩5分) |
0120-312-514
0120-312-514
物件の売却をご検討の方は、 はやめの査定依頼がおすすめです!
買い替えをご検討の方はこちら0120-312-514

