練馬区西大泉1丁目
西武池袋・豊島線 保谷駅 徒歩14分
4LDK
建物面積:90.25㎡
土地面積:91.47㎡
2026年05月築(予定)
6,080万円



| 物件種別 | 新築戸建 |
| 所在地 | GoogleMaps |
| 交通 | 西武池袋・豊島線 保谷駅 徒歩16分 |
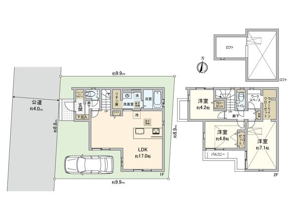
| 間取り | 3LDK |
| 建物面積 | 85.7㎡(約25.92坪) |
| 土地面積 | 88.47㎡(約26.76坪) |
| 築年月 | 2026年07月築(予定) |
月々のローン費用を確認する
-物件のおすすめポイント- ▼立地 ・西武池袋・豊島線 「保谷」駅 徒歩16分 ・第一種低層住居専用地域の閑静な住宅街 ▼建物・お部屋の特徴 ・敷地面積88.47平米(約26.76坪) ・建物面積85.70平米の3LDK ・約17帖の広々としたLDK ・リビングイン階段 ・豊富な収納スペース シューズインクローク、パントリー、ロフト ・主寝室にはウォークインクローゼット ・各フロアにトイレあり ・駐車スペースあり(車種による) ▼設備 ・浴室換気乾燥機 ・三面鏡化粧台 ・温水洗浄便座 ・全室ペアガラス ・カラーTVモニターインターホン ・24時間換気 ▼周辺環境 ・周辺には生活利便施設が豊富にございます 徒歩10分圏内には、スーパー/コンビニ/ドラッグストア ・練馬区立大泉第四小学校 徒歩8分(約570m)と通学も安心です ■ご希望の住まい探しをお手伝いします ━━━━━ ・・・ 物件の詳細・ご相談はお気軽にお問い合わせください。
| 所在地 | GoogleMaps |
| 価格 | 6,080万円 |
| 交通 | 西武池袋・豊島線 保谷駅 徒歩16分 |
| その他費用 | - |
| 間取り | 3LDK |
| 建物面積 | 85.7㎡(約25.92坪) |
| 土地面積 | 88.47㎡(約26.76坪) |
| 築年月 | 2026年07月築(予定) |
| 建物構造 | 木造2階建 |
| 現況 | 未完成 |
| 駐車場 | 有 |
| 土地権利 | 所有権 |
| 地目 | 宅地 |
| 接道状況 | 西側: 約 4m (公道) |
| 建ぺい率 | 50% |
| 容積率 | 100% |
| 用途地域 | 第一種低層住居専用地域 |
| 都市計画 | 市街化区域 |
| 建築確認番号 | TKK確済25-783号 |
| 備考 | - |
| 引渡時期 | 相談 |
| 取引態様 | 仲介 |
| 更新日 | 2026年03月22日 |
| 次回更新予定 | 2026年04月05日 |
| 物件番号 | F26BBA06 |
最新のAI技術を活用した相談サービスです。
お客様一人ひとりのニーズに合わせて最適な情報をご提供します。
リハウスAIチャットの詳しい説明はこちら
GoogleMaps
| スーパー | いなげや練馬西大泉店 約540m(徒歩7分) |
| スーパー | ビッグ・エー練馬西大泉店 約630m(徒歩8分) |
| スーパー | ジェーソン 練馬西大泉店 約800m(徒歩10分) |
| 公園 | 練馬区立西大泉いずみ公園 約200m(徒歩3分) |
| 病院 | 佐伯医院 約520m(徒歩7分) |
| 小学校 | 練馬区立大泉第四小学校 約570m(徒歩8分) |
| 中学校 | 大泉西中学校 約1220m(徒歩16分) |
| その他利便施設1 | 保谷駅 約1220m(徒歩16分) |
| その他利便施設2 | セブンイレブン練馬西大泉5丁目店 約430m(徒歩6分) |
| その他利便施設3 | クリエイトSD新練馬西大泉店 約530m(徒歩7分) |
三井不動産リアルティ株式会社
国土交通大臣(15)第777号
0120-323-661
0120-323-661
物件の売却をご検討の方は、 はやめの査定依頼がおすすめです!
買い替えをご検討の方はこちら0120-323-661

