小金井市桜町2丁目
中央本線 武蔵小金井駅 徒歩16分
4LDK
建物面積:94.32㎡
土地面積:127.62㎡
2026年06月築(予定)
9,690万円



| 物件種別 | 新築戸建 |
| 所在地 | GoogleMaps |
| 交通 | 中央本線 武蔵小金井駅 徒歩19分 |
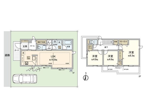
| 間取り | 3LDK |
| 建物面積 | 89.52㎡(約27.07坪) |
| 土地面積 | 115.02㎡(約34.79坪) |
| 築年月 | 2025年11月築 |
-物件のおすすめポイント- ▼立地 ・JR中央線「武蔵小金井」駅 徒歩19分 ▼建物の特徴 ・ダイワハウス工業の分譲戸建 ・Nearly ZEH仕様 ・震度7クラスの地震波4度連続で受けても耐震性能を維持できる構造体 ・断熱性と快適性を実現した部材仕様 ・ダイワハウスの無料点検・保証プログラム対象物件 ・都心への快適アクセス、庭付新築3LDK ・ガーデニングなどが楽しめるお庭 ▼お部屋の特徴 ・広々と余裕を感じられるリビング ・浄水器、食洗機付のシステムキッチン ・キッチンと洗面室に床下収納あり ・電動シャッターを設置 ▼設備 ・太陽光発電パネル ・家族で作業できるL字型キッチン ・ガラストップコンロ、ビルドイン浄水器 ・ガス衣類乾燥機、床暖房(LD) ・各居室に収納あり、エアコン2台設置(LD、主寝室) ・宅配ボックス ▼周辺環境 ・ダイエー小金井店 徒歩12分(約960m) ・上水公園 徒歩6分(約440m) ・小金井市立小金井第二小学校 徒歩4分(約310m) ・小金井市立小金井第一中学校 徒歩1分(約70m)
| 所在地 | GoogleMaps |
| 価格 | 9,690万円 |
| 交通 | 中央本線 武蔵小金井駅 徒歩19分 |
| その他費用 | - |
| 間取り | 3LDK |
| 建物面積 | 89.52㎡(約27.07坪) |
| 土地面積 | 115.02㎡(約34.79坪) |
| 築年月 | 2025年11月築 |
| 建物構造 | 軽量鉄骨造2階建 |
| 現況 | 空家 |
| 駐車場 | 有 |
| 土地権利 | 所有権 |
| 地目 | 宅地 |
| 接道状況 | 西側: 約 5m (公道) |
| 建ぺい率 | 40% |
| 容積率 | 80% |
| 用途地域 | 第一種低層住居専用地域 |
| 都市計画 | 市街化区域 |
| 備考 | - |
| 引渡時期 | 即時 |
| 取引態様 | 仲介 |
| 更新日 | 2026年04月24日 |
| 次回更新予定 | 2026年05月08日 |
| 物件番号 | F26BGA3D |
最新のAI技術を活用した相談サービスです。
お客様一人ひとりのニーズに合わせて最適な情報をご提供します。
リハウスAIチャットの詳しい説明はこちら
GoogleMaps
| スーパー | ダイエー小金井店 約960m(徒歩12分) |
| スーパー | ヤオコー小平回田店 約1100m(徒歩14分) |
| 公園 | 上水公園 約440m(徒歩6分) |
| 病院 | 貫井北町くろだ内科 約480m(徒歩6分) |
| 小学校 | 小金井市立小金井第二小学校 約310m(徒歩4分) |
| 中学校 | 小金井市立小金井第一中学校 約90m(徒歩2分) |
| その他利便施設1 | ファミリーマート小金井桜町店 約440m(徒歩6分) |
| その他利便施設2 | サンドラッグ貫井北店 約950m(徒歩12分) |
| その他利便施設3 | SOCOLA武蔵小金井クロス 約1740m(徒歩22分) |
| その他利便施設4 | 小金井郵便局 約890m(徒歩12分) |
三井不動産リアルティ株式会社
国土交通大臣(15)第777号
0120-323-661
0120-323-661
物件の売却をご検討の方は、 はやめの査定依頼がおすすめです!
買い替えをご検討の方はこちら0120-323-661

