調布市深大寺北町7丁目
京王電鉄京王線 調布駅 バス25分 深大寺北町 停歩4分
3LDK
建物面積:76.18㎡
土地面積:95.98㎡
新築
5,590万円



| 物件種別 | 新築戸建 |
| 所在地 | GoogleMaps |
| 交通 | |
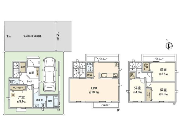
| 間取り | 4LDK |
| 建物面積 | 115.76㎡(約35.01坪) |
| 土地面積 | 70.42㎡(約21.3坪) ※別途私道約77.42㎡有 (共有持分 10/60) |
| 築年月 | 2026年05月築(予定) |
■ アクセス ● 京王相模原線「京王多摩川」駅徒歩11分 ● 京王線「西調布」駅徒歩20分 ■ 周辺環境 ● 緑豊かな街並み、閑静な住宅街につき住環境良好 ● 小学校まで徒歩6分お子様の通学に安心です ■ おすすめ ● 各居室2面採光4LDKの3階建新築戸建 ● ビルトイン車庫14.74平米有り(但し車種による) ● 約18帖の開放感あるLDK ● コミュケーションの取りやすいリビング階段 ● 各居室に収納有り ● 2階両面バルコニー
| 所在地 | GoogleMaps |
| 価格 | 5,590万円 |
| 交通 | |
| その他費用 | - |
| 間取り | 4LDK |
| 建物面積 | 115.76㎡(約35.01坪) |
| 土地面積 | 70.42㎡(約21.3坪) ※別途私道約77.42㎡有 (共有持分 10/60) |
| 築年月 | 2026年05月築(予定) |
| 建物構造 | 木造3階建 |
| 現況 | 未完成 |
| 駐車場 | 有 |
| 土地権利 | 所有権 |
| 地目 | 宅地 |
| 接道状況 | 北東側: 約 4.2m (私道) |
| 建ぺい率 | 60% |
| 容積率 | 200% |
| 用途地域 | 準工業地域 |
| 都市計画 | 市街化区域 |
| 建築確認番号 | 第HPA-26-00950-1号 |
| 備考 | 建物面積115.76平米には車庫部分14.74平米が含まれます。 |
| 引渡時期 | 2026年05月下旬以降 |
| 取引態様 | 仲介 |
| 更新日 | 2026年04月23日 |
| 次回更新予定 | 2026年05月07日 |
| 物件番号 | F27BCA0E |
最新のAI技術を活用した相談サービスです。
お客様一人ひとりのニーズに合わせて最適な情報をご提供します。
リハウスAIチャットの詳しい説明はこちら
GoogleMaps
| スーパー | スーパーオザム調布多摩川店 約430m(徒歩6分) |
| スーパー | まいばすけっと調布多摩川1丁目店 約1050m(徒歩14分) |
| スーパー | 京王ストアキッチンコート西調布店 約1210m(徒歩16分) |
| 小学校 | 調布市立多摩川小学校 約410m(徒歩6分) |
| 中学校 | 調布市立第五中学校 約1230m(徒歩16分) |
| その他利便施設1 | ファミリーマート京王多摩川店 約420m(徒歩6分) |
| その他利便施設2 | ミニストップ調布多摩川1丁目店 約410m(徒歩6分) |
| その他利便施設3 | ローソン京王多摩川駅店 約800m(徒歩10分) |
| その他利便施設4 | サンドラッグ下石原店 約960m(徒歩12分) |
| その他利便施設5 | 調布小島郵便局 約910m(徒歩12分) |
0120-556-404
0120-556-404
物件の売却をご検討の方は、 はやめの査定依頼がおすすめです!
買い替えをご検討の方はこちら0120-556-404

