さいたま市見沼区大和田町1丁目
東武野田線 大和田駅 徒歩15分
4LDK
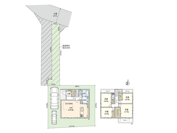
建物面積:103.91㎡
土地面積:128.5㎡
新築
4,280万円



| 物件種別 | 新築戸建 |
| 所在地 | GoogleMaps |
| 交通 | 東武野田線 大和田駅 徒歩15分 |
| 間取り | 4LDK |
| 建物面積 | 103.09㎡(約31.18坪) |
| 土地面積 | 160.22㎡(約48.46坪) |
| 築年月 | 2026年02月築 |
■ おすすめポイント ━━━━━━━━━━━━━━━・・・・・ ○ 令和8年2月完成の新築戸建4LDK ○ 東武アーバンパークライン「大和田」駅徒歩15分 ○ 全居室二面採光 ○ 豊富な収納スペース(クローゼット、ウォークインクローゼット等) ○ 2台分の駐車スペース有り(車種によります) ○ 閑静な住宅街 ■ 設備・仕様 ━━━━━━━━━━━━━━━・・・・・ ○ システムキッチン ○ ビルトイン食洗機 ○ 浴室換気暖房乾燥機 ○ 洗髪洗面化粧台 ○ 温水洗浄便座 ○ TVモニター付インターホン ○ 床暖房(LD一部分) ○ パントリー ○ リネン庫 ○ シューズクローク ○ 床下収納 ○ Low-E複層ガラス ○ 24時間換気
室内を内覧しているように物件を見学することができます。
| 所在地 | GoogleMaps |
| 価格 | 4,280万円 |
| 交通 | 東武野田線 大和田駅 徒歩15分 |
| その他費用 | - |
| 間取り | 4LDK |
| 建物面積 | 103.09㎡(約31.18坪) |
| 土地面積 | 160.22㎡(約48.46坪) |
| 築年月 | 2026年02月築 |
| 建物構造 | 木造2階建 |
| 現況 | 空家 |
| 駐車場 | 有 |
| 土地権利 | 所有権 |
| 地目 | 宅地 |
| 接道状況 | 北側: 約 3.3m (公道) |
| 建ぺい率 | 50% |
| 容積率 | 100% |
| 用途地域 | 第一種低層住居専用地域 |
| 都市計画 | 市街化区域 |
| 備考 | ※土地面積に協定部分33.52平米含む ※他ゴミ置き場持分3.07平米のうち5分の1有 ※絶対高さ制限:10m |
| 引渡時期 | 相談 |
| 取引態様 | 仲介 |
| 更新日 | 2026年03月28日 |
| 次回更新予定 | 2026年04月11日 |
| 物件番号 | F50BGA88 |
最新のAI技術を活用した相談サービスです。
お客様一人ひとりのニーズに合わせて最適な情報をご提供します。
リハウスAIチャットの詳しい説明はこちら
GoogleMaps
| スーパー | マルエツ大宮大和田店 約990m(徒歩13分) |
| 公園 | 大和田北緑地公園 約260m(徒歩4分) |
| 病院 | 小野田クリニック 約550m(徒歩7分) |
| 小学校 | さいたま市立大砂土東小学校 約1990m(徒歩25分) |
| 中学校 | さいたま市立大宮八幡中学校 約640m(徒歩8分) |
| その他利便施設1 | ローソンさいたま大和田1丁目店 約330m(徒歩5分) |
| その他利便施設2 | くすりセイジョー大和田店 約1070m(徒歩14分) |
| その他利便施設3 | 大和田駅前郵便局 約1230m(徒歩16分) |
0120-031-631
0120-031-631
物件の売却をご検討の方は、 はやめの査定依頼がおすすめです!
買い替えをご検討の方はこちら0120-031-631

