松戸市東平賀
千代田・常磐緩行線 北小金駅 徒歩9分
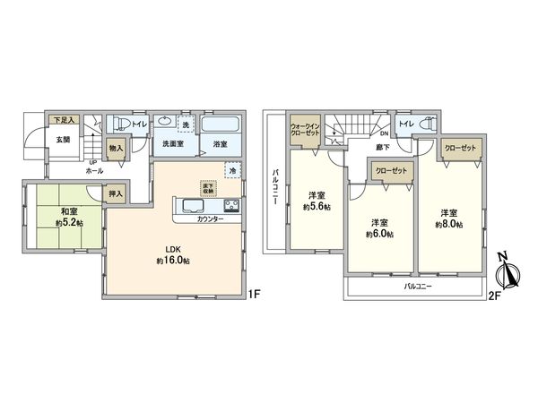
4LDK
建物面積:98.81㎡
土地面積:134.77㎡
2025年12月築(予定)
4,580万円



| 物件種別 | 新築戸建 |
| 所在地 | GoogleMaps |
| 交通 | 千代田・常磐緩行線 北小金駅 徒歩9分 |
| 間取り | 4LDK |
| 建物面積 | 98.01㎡(約29.64坪) |
| 土地面積 | 132.38㎡(約40.04坪) |
| 築年月 | 2025年12月築(予定) |
返済計画を入力すると毎月のお支払い目安を表示できます
■ おすすめポイント ━━━━━━━━━━━━━━━・・・・・ ○ 千代田・常磐緩行線「北小金」駅 徒歩9分 ○ 令和7年12月完成予定の新築戸建 ○ 土地面積:132.38平米(約40.04坪) ○ 建物面積:98.01平米(約29.64坪)の4LDK ○ ご家族との対話が弾む対面式キッチン ○ 雨の日の洗濯にも便利な浴室乾燥機 ○ 来客時に便利なTVモニター付きインターホン ■ ライフインフォメーション ━━━━━━━━━━━━━━━・・・・・ ○ イオン北小金店 約780m ○ ファミリーマート北小金駅前店 約660m ○ マツモトキヨシ小金店 約850m ○ 大倉記念病院 約1310m ○ 松戸市立殿平賀小学校 約1040m ○ 松戸市立小金北中学校 約1640m
| 所在地 | GoogleMaps |
| 価格 | 4,580万円 |
| 交通 | 千代田・常磐緩行線 北小金駅 徒歩9分 |
| その他費用 | - |
| 間取り | 4LDK |
| 建物面積 | 98.01㎡(約29.64坪) |
| 土地面積 | 132.38㎡(約40.04坪) |
| 築年月 | 2025年12月築(予定) |
| 建物構造 | 木造2階建 |
| 現況 | 未完成 |
| 駐車場 | 有 |
| 土地権利 | 所有権 |
| 地目 | 宅地 |
| 接道状況 | 西側: 約 5m (公道) |
| 建ぺい率 | 60% |
| 容積率 | 200% |
| 用途地域 | 第一種住居地域 |
| 都市計画 | 市街化区域 |
| 建築確認番号 | 第25UDI1C建02880号 |
| 備考 | ※ゴミ置場持分(3.08平米×1/9)有 小学校・中学校までの距離は通学路ではございません。 |
| 引渡時期 | 相談 |
| 取引態様 | 仲介 |
| 更新日 | 2025年11月03日 |
| 次回更新予定 | 2025年11月17日 |
| 物件番号 | F77AGB19 |
GoogleMaps
| スーパー | イオン北小金店 約780m(徒歩10分) |
| 病院 | 医療法人社団清志会大倉記念病院 約1310m(徒歩17分) |
| 小学校 | 松戸市立殿平賀小学校 約1040m(徒歩13分) |
| 中学校 | 松戸市立小金北中学校 約1640m(徒歩21分) |
| その他利便施設1 | 北小金駅(JR東日本 常磐線) 約650m(徒歩9分) |
| その他利便施設2 | ファミリーマート北小金駅前店 約660m(徒歩9分) |
| その他利便施設3 | マツモトキヨシ小金店 約850m(徒歩11分) |
0120-984-331
0120-984-331
物件の売却をご検討の方は、 はやめの査定依頼がおすすめです!
買い替えをご検討の方はこちら0120-984-331
