申し訳ございません。お探しの物件は、掲載が終了したか、成約済みになった可能性があります。
あなたがお探しの条件に合う物件をピックアップさせていただきました。お気軽に担当店舗へお問い合わせください。
新築戸建
5,180万円
藤沢市弥勒寺3丁目
東海道本線(東京~熱海) 藤沢駅 バス8分 村岡 停歩10分
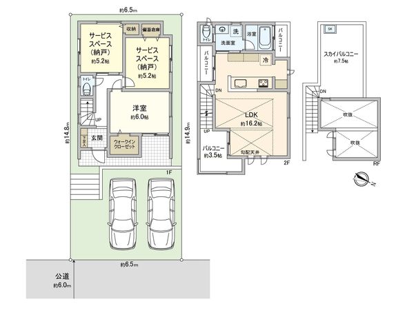
LDK+3S(納戸)
建物面積:90.66㎡
土地面積:111.69㎡
新築
5,480万円
1LDK+2S
建物面積:81.56㎡
土地面積:100.01㎡
2026年04月築(予定)
5,799万円
藤沢市本藤沢2丁目
小田急電鉄江ノ島線 藤沢本町駅 徒歩18分
3LDK
建物面積:96.02㎡
土地面積:120.52㎡
建物面積:95.73㎡
土地面積:120.51㎡
5,999万円
4LDK
建物面積:99.03㎡
土地面積:124.08㎡
6,799万円
藤沢市羽鳥5丁目
小田急電鉄江ノ島線 藤沢本町駅 徒歩19分
3SLDK
建物面積:107.02㎡
土地面積:134.23㎡
5,499万円
藤沢市本藤沢3丁目
小田急電鉄江ノ島線 藤沢本町駅 徒歩15分
建物面積:92.45㎡
土地面積:116.37㎡
2026年06月築(予定)
5,599万円
建物面積:92.49㎡
営業時間
10:00~18:00
定休日
毎週水曜日
住所
メールアドレス
パスワード
お気に入り物件で価格変更・オープンハウス情報の更新があります