川崎市宮前区馬絹1丁目
東急田園都市線 宮前平駅 徒歩12分
4LDK
建物面積:101.85㎡
土地面積:127.53㎡
新築
9,980万円



| 物件種別 | 新築戸建 |
| 所在地 | GoogleMaps |
| 交通 | |
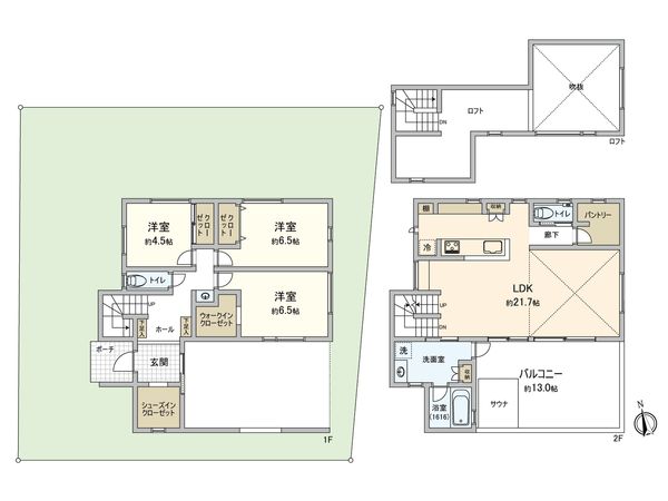
| 間取り | 3LDK |
| 建物面積 | 147.5㎡(約44.61坪) |
| 土地面積 | 192.35㎡(約58.18坪) |
| 築年月 | 2026年03月築 |
予約制内覧会を開催します!
| 開催日 | 5月16日(土)11:00 ~ 17:00 5月17日(日)11:00 ~ 17:00 5月23日(土)11:00 ~ 17:00 5月24日(日)11:00 ~ 17:00 5月30日(土)11:00 ~ 17:00 |
|---|
-物件のおすすめポイント- ▼立地 ・ ラッシュ時バス5分おき(平日7時~10時) ▼建物の特徴 ・ カーライフを満喫できる4台分の駐車スペース(車種による) ・ 電動シャッター付車庫 ▼お部屋の特徴 ・ 明るく開放感のあるリビングダイニング ・ 家族の対話を重視したリビングイン階段 ・ 全居室フローリング仕様で、落ち着いた雰囲気の内装 ▼設備 ・ 窓があり、換気しやすく明るい浴室・洗面所 ・ サウナ付きバルコニー ・ 調味料のストックや非常食の収納に便利なパントリー付 ・ ウォークインクローゼット・シューズインクローゼット等収納充実 ・ 収納便利なロフト付でお部屋もスッキリ ▼周辺環境 ・ 西野川小学校(約320m)野川こぶし坂公園(約60m)と子育てしやすい住環境 ・ 交通量の少ない閑静な住宅街 ■ ご希望の住まい探しをお手伝いします ━━━━━・・・ 物件の詳細・ご相談はお気軽にお問い合わせください。
| 所在地 | GoogleMaps |
| 価格 | 9,980万円 |
| 交通 | |
| その他費用 | - |
| 間取り | 3LDK |
| 建物面積 | 147.5㎡(約44.61坪) |
| 土地面積 | 192.35㎡(約58.18坪) |
| 築年月 | 2026年03月築 |
| 建物構造 | 木造2階建 |
| 現況 | 空家 |
| 駐車場 | - |
| 土地権利 | 所有権 |
| 地目 | 宅地 |
| 接道状況 | - |
| 建ぺい率 | 40% |
| 容積率 | 80% |
| 用途地域 | 第一種低層住居専用地域 |
| 都市計画 | 市街化区域 |
| 備考 | 建物面積:147.50平米にビルトイン車庫21.53平米含む/別途地下車庫17.50平米 上記建物面積のうち1F車庫面積21.53㎡含む |
| 引渡時期 | 相談 |
| 取引態様 | 仲介 |
| 更新日 | 2026年05月14日 |
| 次回更新予定 | 2026年05月28日 |
| 物件番号 | FH3BGA20 |
最新のAI技術を活用した相談サービスです。
お客様一人ひとりのニーズに合わせて最適な情報をご提供します。
リハウスAIチャットの詳しい説明はこちら
GoogleMaps
| スーパー | Fuji上野川店 約540m(徒歩7分) |
| 公園 | 野川こぶし坂公園 約60m(徒歩1分) |
| 病院 | 風の道クリニック 約550m(徒歩7分) |
| 小学校 | 川崎市立西野川小学校 約320m(徒歩4分) |
| 中学校 | 川崎市立野川中学校 約370m(徒歩5分) |
| その他利便施設1 | ローソン川崎野川店 約450m(徒歩6分) |
三井不動産リアルティ株式会社
国土交通大臣(15)第777号
0120-313-780
0120-313-780
物件の売却をご検討の方は、 はやめの査定依頼がおすすめです!
買い替えをご検討の方はこちら0120-313-780

