藤沢市大庭
東海道本線(東京~熱海) 辻堂駅 バス15分 駒寄 停歩8分
3LDK
建物面積:97.9㎡
土地面積:133.1㎡
新築
5,399万円



| 物件種別 | 新築戸建 |
| 所在地 | GoogleMaps |
| 交通 | |
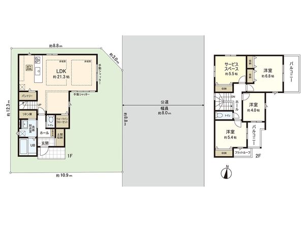
| 間取り | 3SLDK ※S・サービススペースは納戸です |
| 建物面積 | 107.31㎡(約32.46坪) |
| 土地面積 | 133㎡(約40.23坪) |
| 築年月 | 2025年10月築 |
返済計画を入力すると毎月のお支払い目安を表示できます
三井のリハウス辻堂センターまでお気軽にお問い合わせください ■ アクセス・周辺環境 ━━━━━━━━━━━━━━━・・・・・ ○ 小田急江ノ島線「善行」駅 徒歩18分 または「善行」駅バス8分「善行団地」停歩2分 ○ 都市計画道路藤沢石川線が近くを通る、お車でのお出掛けにも便利な立地です ○ 桜並木の美しい引地川親水公園へウォーキングがてら歩いて行くこともできます ○ 藤沢市立善行小学校・善行中学校校区 ■ 物件のおすすめポイント ━━━━━━━━━━━━━━━・・・・・ ○ 善行団地・善行小学校に近く、お買い物や通学のしやすい物件です ○ 21帖を超える広々LDK ○ 全室二面採光の開口部あり ○ カースペース2台分(車種による) ○ 土間収納やパントリーなど収納が充実しています ○ ZEH水準省エネ住宅 ○ フラット35S利用可能 ○ 床暖房をはじめ住宅設備も充実しており快適にお過ごしいただけます ■ 担当者より ━━━━━━━━━━━━━━━・・・・・ 周辺環境や施設のご案内はもちろん、周辺物件も併せてご紹介できます。 また、購入に際しての諸費用、住宅ローン(月々の返済例など)等、 資金計画のご相談も承っておりますので、ご興味がございましたら下方の 「問い合わせ」又は「見学予約」よりお問い合わせ下さい。 お電話でのご相談も受付けておりますので、 フリーコール「0120-053-031」までお気軽にお問合せ下さいませ。
| 所在地 | GoogleMaps |
| 価格 | 5,399万円 |
| 交通 | |
| その他費用 | - |
| 間取り | 3SLDK ※S・サービススペースは納戸です |
| 建物面積 | 107.31㎡(約32.46坪) |
| 土地面積 | 133㎡(約40.23坪) |
| 築年月 | 2025年10月築 |
| 建物構造 | 木造2階建 |
| 現況 | 空家 |
| 駐車場 | 有 |
| 土地権利 | 所有権 |
| 地目 | 宅地 |
| 接道状況 | 東側: 約 8m (公道) |
| 建ぺい率 | 60% |
| 容積率 | 200% |
| 用途地域 | 第一種中高層住居専用地域 |
| 都市計画 | 市街化区域 |
| 備考 | 準防火地域、下水道処理区域、宅地造成等工事規制区域、日影規制3H-2H・4m |
| 引渡時期 | 相談 |
| 取引態様 | 仲介 |
| 更新日 | 2025年11月28日 |
| 次回更新予定 | 2025年12月12日 |
| 物件番号 | FZ2AGAF9 |
最新のAI技術を活用した相談サービスです。
お客様一人ひとりのニーズに合わせて最適な情報をご提供します。
リハウスAIチャットの詳しい説明はこちら
GoogleMaps
| スーパー | Aコープ善行店 約400m(徒歩5分) |
| スーパー | FUJI 善行店 約1000m(徒歩13分) |
| 公園 | 善行北唐池公園 約450m(徒歩6分) |
| 病院 | 石川医院 約450m(徒歩6分) |
| 小学校 | 藤沢市立善行小学校 約300m(徒歩4分) |
| 中学校 | 藤沢市立善行中学校 約750m(徒歩10分) |
| その他利便施設1 | 善行駅 西口(小田急 江ノ島線) 約1400m(徒歩18分) |
| その他利便施設2 | ウエルシア藤沢善行店 約800m(徒歩10分) |
| その他利便施設3 | クリエイトS・D 藤沢善行店 約1300m(徒歩17分) |
| その他利便施設4 | ローソン藤沢大庭店 約270m(徒歩4分) |
0120-053-031
0120-053-031
物件の売却をご検討の方は、 はやめの査定依頼がおすすめです!
買い替えをご検討の方はこちら0120-053-031

