世田谷区成城4丁目
小田急電鉄小田原線 成城学園前駅 徒歩18分
「プラウド成城樟景台」は、小田急電鉄小田原線成城学園前駅に近接しており、日々の通勤や通学、さらにはお出かけにも便利な立地に位置しています。 この物件は、駅へのアクセスが良好であることから、都心への移動もスムーズに行えるため、都会の利便性を享受しながらも、落ち着いた住環境を求める方に適しています。 成城学園前駅周辺は、教育施設や商業施設が点在し、生活に便利な環境が整っています。また、住宅地としての静けさも保たれており、ファミリー層を中心に安心して住むことができるでしょう。 都心へのアクセスと住環境の良さを兼ね備えた「プラウド成城樟景台」は、快適な都市生活を求める方々に適した住まいと言えるでしょう。





| 所在地 | 東京都世田谷区成城1丁目 GoogleMaps |
| 交通 | 小田急電鉄小田原線 成城学園前駅 徒歩8分 |
| 総戸数 | 29戸 |
| 分譲会社 | 野村不動産(株) |
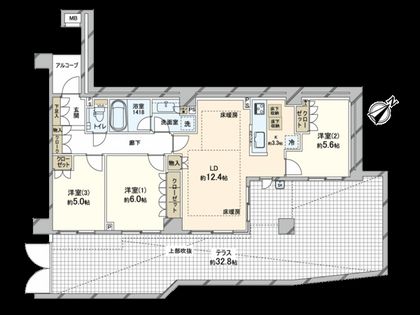
| 周辺施設 | - |
| 築年月 | 2006年06月 築 |
| 階建 | 地上5階 地下1階建 |
| 建物構造 | 鉄筋コンクリート造 |
| 施工会社 | 東海興業(株) |
営業時間
10:00~18:00
定休日
毎週火曜日・水曜日 ※5/1(金)~5/6(水) GW休業期間
お客様一人一人の物件に合わせて、
不動産取引に精通したプロが売り出し価格・募集賃料をご提案いたします。
不動産無料査定をお考えの方
お客様からいただいた物件情報と周辺事例や成約取引事例等に基づき、価格をご提示いたします。
無料査定依頼万円~
万円
物件の広さを選択してください
※物件の広さを選択いただくと、面積ごとの参考相場価格が確認できます。選択可能な面積は、実際のマンションの面積帯とは異なりますので、ご注意ください。
プラウド成城樟景台 周辺相場・購入検討者情報
「専有面積×価格」などの件数分布表で相場を把握いただけます。
世田谷区の中古マンション購入情報をチェック三井のリハウスにご依頼いただいている方のうち、世田谷区周辺のマンション購入検討者数をご希望価格帯別にご紹介します。
世田谷区周辺におけるマンションの購入検討者数をご希望価格帯別に表示しています。
過去10年の取引実績件数を一覧で表示します
総取引件数
7,674件
マンション
4,370件
一戸建て・土地
3,304件
こちらのマンションで別の間取りや別の階などの新しい物件が売り出されたら、いち早くメールでご連絡いたします。
この物件が出たら教えて!売り出し通知メール登録者数5人
お客様一人一人の物件に合わせて、不動産取引に精通したプロが売り出し価格・募集賃料をご提案いたします。
無料査定依頼売り出し中物件が見つからない場合、異なる条件の物件をご希望の場合など、お気軽にお問い合わせください。
担当店舗へ問い合わせる