江東区亀戸3丁目
中央・総武緩行線 亀戸駅 徒歩12分
3DK
建物面積:86㎡
土地面積:107.45㎡
2004年09月築
14,980万円



| 物件種別 | 中古戸建 |
| 所在地 | GoogleMaps |
| 交通 | |
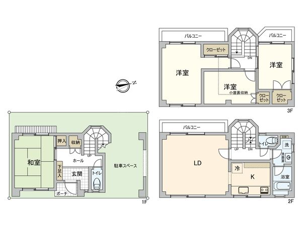
| 間取り | 4LDK |
| 建物面積 | 92.56㎡(約27.99坪) |
| 土地面積 | 52.05㎡(約15.74坪) |
| 築年月 | 1995年03月築 |
■ アクセス ━━━━━━━━━━━━━━━・・・・・ ○ 東京メトロ東西線「木場」駅 徒歩9分 ○ 東京メトロ東西線「門前仲町」駅 徒歩12分 ■ おすすめポイント ━━━━━━━━━━━━━━━・・・・・ ○ 木造3階建/4LDK ○ 土地面積/52.05平米 ○ 建物面積/92.56平米 ○ 前面道路幅員約5.9m(公道) ○ 窓があり、換気しやすく明るい浴室・洗面所 ○ 収納に便利な小屋裏収納付 ○ 西側バルコニーからは平久川を望みます ○ 駐車スペース有(車種制限有) ○ コンビニ、スーパー、ドラッグストアが徒歩5分圏内にあり、お買物に便利です
| 所在地 | GoogleMaps |
| 価格 | 14,980万円 |
| 交通 | |
| その他費用 | - |
| 間取り | 4LDK |
| 建物面積 | 92.56㎡(約27.99坪) |
| 土地面積 | 52.05㎡(約15.74坪) |
| 築年月 | 1995年03月築 |
| 建物構造 | 鉄骨造3階建 |
| 現況 | 居住中 |
| 駐車場 | 有 |
| 土地権利 | 所有権 |
| 地目 | 宅地 |
| 接道状況 | 東側: 約 5.9m (公道) |
| 建ぺい率 | 60% |
| 容積率 | 300% |
| 用途地域 | 準工業地域 |
| 都市計画 | 市街化区域 |
| 備考 | - |
| 引渡時期 | 相談 |
| 取引態様 | 仲介 |
| 更新日 | 2026年04月25日 |
| 次回更新予定 | 2026年05月09日 |
| 物件番号 | FM5ASA0B |
最新のAI技術を活用した相談サービスです。
お客様一人ひとりのニーズに合わせて最適な情報をご提供します。
リハウスAIチャットの詳しい説明はこちら
GoogleMaps
| スーパー | まいばすけっと江東富岡2丁目店 約320m(徒歩4分) |
| スーパー | オーケーストア平野店 約580m(徒歩8分) |
| 公園 | 木場公園 約460m(徒歩6分) |
| 小学校 | 区立数矢小学校 約420m(徒歩6分) |
| 中学校 | 区立東陽中学校 約1810m(徒歩23分) |
| その他利便施設1 | セブンイレブン江東木場3丁目店 約160m(徒歩2分) |
| その他利便施設2 | セブンイレブン江東冬木店 約230m(徒歩3分) |
| その他利便施設3 | ファミリーマート平野二丁目店 約420m(徒歩6分) |
| その他利便施設4 | スギドラッグ江東富岡店 約340m(徒歩5分) |
| その他利便施設5 | 深川ギャザリア 約840m(徒歩11分) |
0120-708-131
リノベーション工事の可能範囲については、本物件の管理組合規約等により一定の制限が加わる場合がございます。詳細については、工事内容の確定後に判明する部分もありますので、この点については事前にお含みおきください。
リノベーションに関するお問い合わせ0120-708-131
物件の売却をご検討の方は、 はやめの査定依頼がおすすめです!
買い替えをご検討の方はこちら0120-708-131

