中央区晴海5丁目
都営大江戸線 勝どき駅 徒歩14分
2LDK / 67.79㎡
2023年11月築
13,800万円



| 物件種別 | 中古マンション |
| 所在地 | GoogleMaps |
| 交通 | |
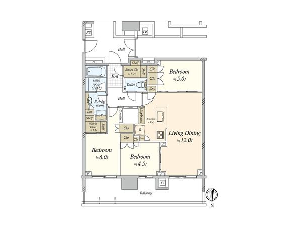
| 間取り | 3LDK |
| 専有面積 | 71.36㎡(約21.58坪) |
| 築年月 | 2025年08月築 |
| 階数 / 階建 | 12階 / 地上50階 地下1階建 |
| 向き | 北 |
■お部屋の特徴 ○ 12階部分北向き住戸 ○ 専有面積71.36平米の3LDK+SIC+WIC ○ 約15.4帖のLDK ○ 各居室、整形につき使い勝手の良い間取 ○ 約3.4帖の対面式システムキッチン ( 浄水器・ディスポーザー・食器洗乾燥機・カップボード・3口コンロ有) ○ 各居室収納有、WIC、SIC等豊富な収納 ○ 1418サイズのユニットバス(天井高約2,200mm) (ミストサウナ・浴室換気乾燥機付) ○ トイレはローシルエットトイレ採用・手洗いシンク有 ○ 床暖房有(LD部分) ○ リビングダイニング・洋室(約6.0帖)最大天井高約2,600mm ○ 最大奥行約2000mm・16.60平米のバルコニー ■マンションの特徴 ○ 三井不動産レジデンシャル株式会社 他 分譲 ○ 三井住友建設株式会社 施工 ○ 総戸数 722 戸 ○ 充実の共用施設 ○ 共用廊下はホテルライクな内廊下設計 ○ 各階ゴミステーション有 (24 時間ゴミ出し可) ○ 住空間のメンテナンス性を高める二重床・二重天井構造 ○ 窓には断熱性に配慮したLow‐E複層ガラス採用 ○ ペット飼育可(細則有) ■ HARUMI FLAG全体で51カ所の共用施設(※一部有償) ▪ パーティールーム (A棟1階、T棟2階) ▪ リラックスラボ(B棟1階) ▪ ゲストルーム (B棟1階、C棟1階、F棟1階、T棟48階) ▪ ライブラリーラウンジ(B棟1・2階) ▪ フラッグコア(C棟1階) ▪ キッズスペース(C棟1階、T棟2階) ▪ 足湯ラウンジ(D棟1階) ▪ ワークスペース(E棟1階) ▪ シアタールーム(F棟B1階) ▪ ソラテラス(F棟14階) ▪ ビューラウンジ(F棟14階) ▪ バーラウンジ(T棟48階) 他 SUN VILLAGE・SEA VILLAGE共用施設の一部相互利用可
| 所在地 | GoogleMaps |
| 価格 | 13,800万円 |
| 交通 | |
| 管理費等 | 28,040円 |
| 修繕積立金 | 13,630円 |
| その他費用 | インターネット等使用料 2,750円 / 月、HARUMI FLAG CLUB会費 500円 / 月、自治会費 100円 / 月 |
| 間取り | 3LDK |
| 専有面積 | 71.36㎡(約21.58坪) |
| 築年月 | 2025年08月築 |
| 階数 / 階建 | 12階 / 地上50階 地下1階建 |
| 向き | 北 |
| バルコニー | 16.6㎡ |
| 現況 | 居住中 |
| 駐車場 | 無 |
| 建物構造 | 鉄筋コンクリート造 |
| 総戸数 | 722戸 |
| 管理会社 | 三井不動産レジデンシャルサービス株式会社 |
| 管理形態 | 管理会社に全部委託 |
| 管理員の 勤務形態 | 日勤 |
| 土地権利 | 所有権 |
| 分譲会社 | 三井不動産レジデンシャル(株) 他 (新築分譲時における売主) |
| 施工会社 | 三井住友建設(株) |
| 設計会社 | (株)日建ハウジングシステム、三井住友建設(株) |
| 備考 | - |
| 引渡時期 | 相談 |
| 取引態様 | 仲介 |
| 更新日 | 2026年04月04日 |
| 次回更新予定 | 2026年04月18日 |
| 物件番号 | F2FBTA15 |
最新のAI技術を活用した相談サービスです。
お客様一人ひとりのニーズに合わせて最適な情報をご提供します。
リハウスAIチャットの詳しい説明はこちら
三井不動産リアルティ株式会社
国土交通大臣(15)第777号
0120-907-231
0120-907-231
物件の売却をご検討の方は、 はやめの査定依頼がおすすめです!
買い替えをご検討の方はこちら0120-907-231

